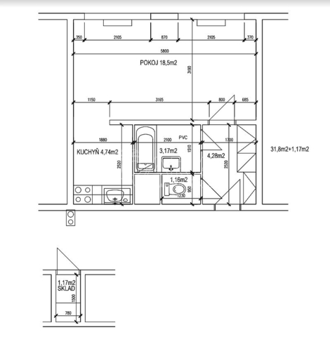
Exkluzivně pronajmeme nově zrekonstruovaný byt o dispozici 1+kk, 33 m2, v 1. patře (2. NP - 4 metry vysoko nad zemí) v revitalizovaném domě s novým výtahem, na velmi klidném místě blízko lesa (Ďáblický háj), na Praze 8, v ulici Šimůnkova 1607/17. V bytě nová kuchyňská linka včetně elektrické trouby, na plastových oknech jsou namontovány žaluzie, z oken výhled do zeleně. Jen pár metrů od bytu naleznete uzamykatelný sklep 1,17 m2. Vhodné pro max 2 osoby. Nízké veškeré zálohy za služby za celý byt 4.000,- včetně plynu a elektřiny. Odměna RK 15.000,- + DPH. Kauce 19 tisíc. Volné od 20. 4. 2026.
Tel: 608 806 044 petr.komarek@qara.cz
Šafaříkova 201/17, 120 00 Praha 2 www.qara.cz/
Ve schránce je 0 inzerátů.
K pronájmu, Byt 1+kk, 27 m2 Braunerova
K pronájmu, Byt 2+kk, 48 m2 Valčíkova
K pronájmu, Byt 2+kk, 43 m2 Famfulíkova
K pronájmu, Byt 2+kk, 52 m2 Vřesová
K pronájmu, Byt 1+kk, 26 m2 V Holešovičkách
K pronájmu, Byt 2+kk, 43 m2 Poznaňská
K pronájmu, Byt 2+kk, 43 m2 Zelenohorská
K pronájmu, Byt 2+kk Chotovická