K pronájmu, Byt 2+1, 55 m2, Praha 3, Na vrcholu

 
 
 
Lokalita:
Praha 3, Na vrcholu
 
 
Cena:
19 000 Kč / za nemovitost
 
vratná jistota, náklady na bydlení 5263 Kč, poplatek za podnájem
 
Nabídněte prodejci Vaši cenu 
 
 

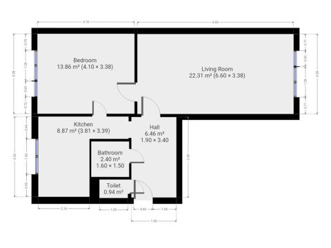
K dlouhodobému podnájmu nabízíme velmi pěkný byt o dispozici 2+1 v atraktivní lokalitě Praha - Žižkov. Byt o celkové výměře 55 m2 se nachází ve čtvrtém patře cihlového domu bez výtahu. Byt se nabízí částečně vybavený. Moderní kuchyně disponuje lednicí, troubou, plynovým sporákem, mikrovlnnou troubou a digestoří. V kuchyni je dále i jídelní stůl s židlemi. Prostorný obývací prostor je zařízen sedací soupravou, televizní stěnou, pracovním stolem s židlí a konferenčním stolkem. Součástí ložnice je postel, komoda a šatní skříň. V koupelně najdeme sprchový kout, umyvadlo a pračku. Toaleta je oddělená. Předsíň je vybavena prostornou šatní skříní. V okolí domu najdeme restaurace, obchod s potravinami, poštu, základní školu, supermarket Albert atd. Dopravní dostupnost je zajištěna zastávkou Chmelnice, která je vzdálená čtyři minuty chůze od domu. Byt je volný k nastěhování od 01.02.2026. Majitel preferuje zájemce bez domácích mazlíčků. Uvedena energetická kategorie G, jelikož nemáme k dispozici PENB. Byt pronajímá Ideální nájemce - služba, se kterou budete bydlet bezstarostně a za férových podmínek. Když se něco přihodí, k dispozici jsou správci, kteří s vámi vše vyřeší. Pomůžeme s veškerou administrativou, s nastavením plateb a zajistíme vám speciální pojištění. Pojďte bydlet s námi!

 
zobrazit více
 
 
 


Doplňující informace:

ID inzerátu ESO: 4274382
Inzerát vydán: 03.09.2024
Inzerát aktualizován: 01.12.2025
ID zakázky v RK: 2478
Budova je z: Cihla
Stav: Velmi dobrý
Vlastnictví: Osobní
Umístění: Velmi dobrý
Obytná plocha: 55 m2
Užitná plocha: 55 m2
Podlahová plocha: 55 m2
 
 

 

Bleskový dotaz makléři

K pronájmu, Byt 2+1, 55 m2, Praha 3, Na vrcholu

Text dotazu *
Váš telefon *
Váš e-mail
Zobrazit kontaktní informace
Odeslat
 
 
 
 

Ve schránce je 0 inzerátů.

zobrazit celou schránku
 
 

Nalezli jsme dalších 38 nemovitostí v podobné ceně.

 
 
reklama