K pronájmu, Byt 2+1, 70 m2, Praha 3, Žerotínova

 
 
nový
 
Lokalita:
Praha 3, Žerotínova
 
 
Cena:
26 000 Kč / za nemovitost
 
+ 1.800 služby pro 2 osoby, elektřina a plyn přepis na nájemce ( měsíční záloha 4.000), vratná kauce 35.000
 
Nabídněte prodejci Vaši cenu 
 
 

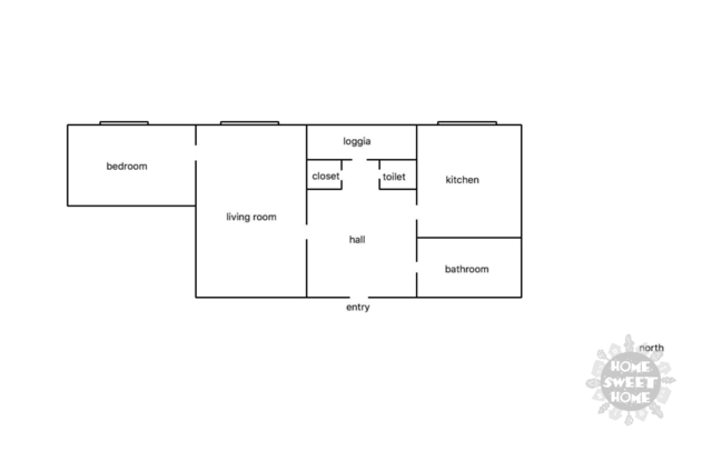
Nabízíme k pronájmu hezký částečně vybavený byt 2+1 s balkonem, který se nachází ve 2.patře cihlového domu s výtahem, v ulici Žerotínova na Žižkově. Dispozice bytu: vstupní chodba vybavená vestavěnou skříní, komodou a botníkem, obývací pokoj se sedačkou, samostatná ložnice se skříní a komodou, kuchyně s jídelním stolem a moderní kuchyňskou linkou (sklokeramická deska, trouba, myčka, pračka, lednice a mikrovlnka), koupelna se sprchovým koutem, toaleta zvlášť. Dostatek úložného prostoru - komora, sklep. Na podlaze PVC, plovoucí podlaha, topení WAW. Klidné bydlení na Praze 3. Kompletní občanská vybavenost a skvělá dopravní dostupnost. Není vhodné na spolubydlení. K dispozici od 1.2.2026

 
zobrazit více
 
 
 


Doplňující informace:

ID inzerátu ESO: 4382439
Inzerát vydán: 02.02.2026
ID zakázky v RK: 78854
Budova je z: Cihla
Stav: Velmi dobrý
Vlastnictví: Osobní
Umístění: Velmi dobrý
Obytná plocha: 70 m2
Užitná plocha: 70 m2
Podlahová plocha: 70 m2
Energetická náročnost budovy:
G - Mimořádně nehospodárná
 
 

 

Bleskový dotaz makléři

K pronájmu, Byt 2+1, 70 m2, Praha 3, Žerotínova

Text dotazu *
Váš telefon *
Váš e-mail
Zobrazit kontaktní informace
Odeslat
 
 
 
 

Ve schránce je 0 inzerátů.

zobrazit celou schránku
 
 

Nalezli jsme dalších 52 nemovitostí v podobné ceně.

 
 
reklama