K pronájmu, Byt 2+kk, 46 m2, Praha 7, U staré plynárny

 
 
 
Lokalita:
Praha 7, U staré plynárny
 
 
Cena:
17 500 Kč / za nemovitost
 
vratná jistota, náklady na bydlení 3968 Kč, poplatek za podnájem
 
Nabídněte prodejci Vaši cenu 
 
 

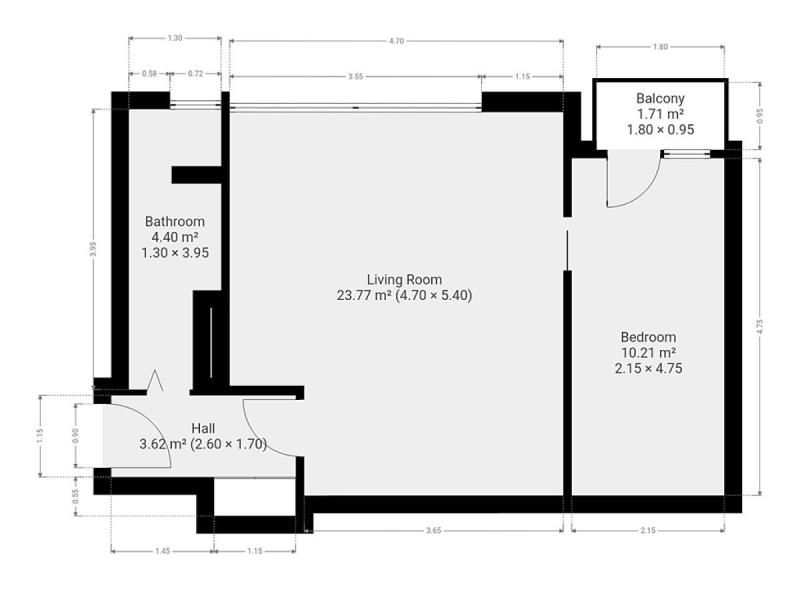
K dlouhodobému podnájmu nabízíme krásný byt o dispozici 2+kk v oblíbené lokalitě Praha 7 - Holešovice. Byt o celkové výměře 46 m2 se nachází v nejvyšším, 5. patře cihlového domu bez výtahu. K bytu patří i balkon. Byt se nabízí částečně vybavený. Kuchyně disponuje lednicí s mrazákem, elektrickou troubou s plynovou varnou deskou, mikrovlnnou troubou a digestoří. Obývací část je zařízena pohovkou, konferenčním stolem a obývací stěnou. Součástí ložnice je postel a 2 šatní skříně. V koupelně je vana, umyvadlo, koupelnová skříňka, pračka a WC. V předsíni je vestavěná skříň. V okolí domu najdeme restaurace a kavárny, supermarkety Albert, Penny Market a Billa, polikliniku s lékárnou, poštu, holešovickou tržnici, městskou knihovnu, multifunkční prostor VNITROBLOCK, hudební klub Cross Club, Centrum současného umění DOX, divadlo La Fabrika, městskou zeleň (Tamirův park, Park U Vody, Ladislavův park) atd. Pár minut chůze od domu je vzdálena tramvajová zastávka Ortenovo náměstí a v docházkové vzdálenosti je stanice metra C - Nádraží Holešovice a vlaková stanice Praha-Holešovice. Byt je volný k nastěhování ihned. Energetická třída: G (průkaz nedodán).

 
zobrazit více
 
 
 


Doplňující informace:

ID inzerátu ESO: 4312018
Inzerát vydán: 16.02.2025
Inzerát aktualizován: 01.01.2026
ID zakázky v RK: 5913
Budova je z: Cihla
Stav: Velmi dobrý
Vlastnictví: Osobní
Umístění: Velmi dobrý
Obytná plocha: 46 m2
Balkón: ANO
Užitná plocha: 46 m2
Podlahová plocha: 46 m2
Energetická náročnost budovy:
G - Mimořádně nehospodárná
 
 

 

Bleskový dotaz makléři

K pronájmu, Byt 2+kk, 46 m2, Praha 7, U staré plynárny

Text dotazu *
Váš telefon *
Váš e-mail
Zobrazit kontaktní informace
Odeslat
 
 
 
 

Ve schránce je 0 inzerátů.

zobrazit celou schránku
 
 

Nalezli jsme dalších 5 nemovitostí v podobné ceně.

 
 
reklama