K pronájmu, Byt 2+kk, 55 m2, Horoměřice, Žižkova

 
 
 
Lokalita:
Horoměřice, Žižkova
 
 
Cena:
16 900 Kč / za nemovitost
 
vratná jistota, náklady na bydlení 4711 Kč včetně elektřiny, poplatek za podnájem
 
Nabídněte prodejci Vaši cenu 
 
 

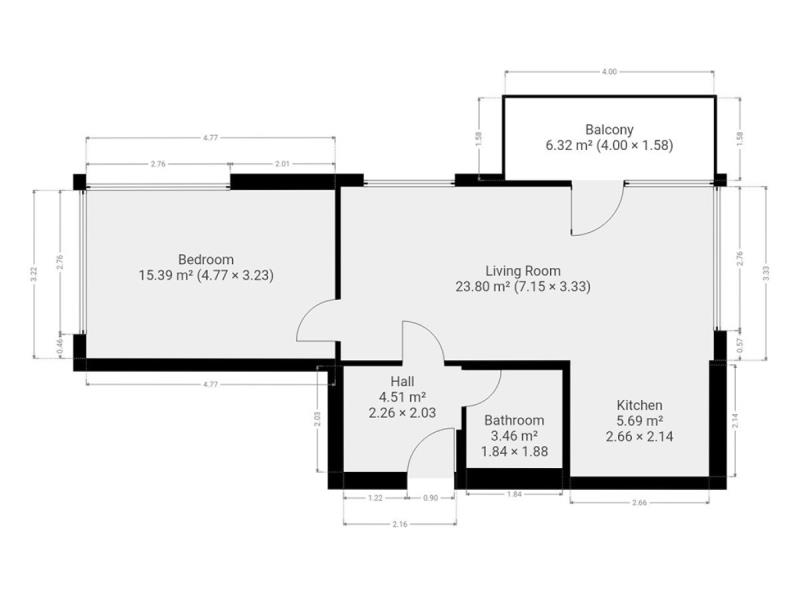
Prohlídky Pro registraci na prohlídku použijte prosím tento formulář: inbyty.cz/byt-jbcbh K dlouhodobému podnájmu nabízíme krásný a moderní byt o dispozici 2+kk v klidné lokalitě Horoměřice. Byt o celkové výměře 55 m2 se nachází ve druhém podlaží novostavby s výtahem. K bytu patří i balkon, sklep. Parkovací stání je pak za poplatek 2.000 Kč/měsíc. Byt se nabízí plně vybavený. Kuchyně disponuje lednicí, myčkou, elektrickou troubou, indukční varnou deskou, digestoří a vestavěnou pračkou. Obývací část je zařízena pohovkou, komodami a konferenčním stolem. Součástí ložnice je postel, noční stolky a komoda. V chodbě najdeme šatní skříň. V koupelně je sprchový kout a toaleta. V okolí domu najdeme restaurace, supermarket Lidl, základní a mateřskou školu, lékárnu atd. Čtyři minuty chůze od domu je vzdálená autobusová zastávka Horoměřice. Autobuse jede 9 minut na zastávku metra Bořislavka. Majitel preferuje zájemce bez domácích mazlíčků. Byt je volný k nastěhování ihned. Energetická kategorie budovy je B. Byt pronajímá Ideální nájemce - služba, se kterou budete bydlet bezstarostně a za férových podmínek. Když se něco přihodí, k dispozici jsou správci, kteří s vámi vše vyřeší. Pomůžeme s veškerou administrativou, s nastavením plateb a zajistíme vám speciální pojištění. Pojďte bydlet s námi!

 
zobrazit více
 
 
 


Doplňující informace:

ID inzerátu ESO: 4151731
Inzerát vydán: 09.05.2023
Inzerát aktualizován: 23.03.2026
ID zakázky v RK: 3703
Budova je z: Cihla
Stav: Velmi dobrý
Vlastnictví: Osobní
Umístění: Velmi dobrý
Obytná plocha: 55 m2
Balkón: ANO
Užitná plocha: 55 m2
Podlahová plocha: 55 m2
 
 

 

Bleskový dotaz makléři

K pronájmu, Byt 2+kk, 55 m2, Horoměřice, Žižkova

Text dotazu *
Váš telefon *
Váš e-mail
Zobrazit kontaktní informace
Odeslat
 
 
 
 

Ve schránce je 0 inzerátů.

zobrazit celou schránku
 
 

Nalezli jsme dalších 19 nemovitostí v podobné ceně.

 
 
reklama