K pronájmu, Byt 3+1, 66 m2, Praha 8, Košťálkova

 
 
 
Lokalita:
Praha 8, Košťálkova
 
 
Cena:
23 900 Kč / za nemovitost
 
vratná jistota, náklady na bydlení 7 900,-Kč poplatek za podnájem
 
Nabídněte prodejci Vaši cenu 
 
 

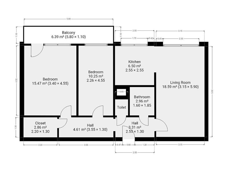
K dlouhodobému podnájmu Vám nabízíme kompletně zařízený byt o dispozici 3+1 ve velmi klidné, přesto dobře dopravně dostupné lokalitě pražských Kobylis. Byt se nachází ve zvýšeném přízemí (okna cca 2,5 od země) zatepleného panelového domu s výtahem. Skládá se ze vstupní chodby s velkou, vestavnou šatní skříní, dvou pokojů z nichž jeden má vstup na lodžii, samostatné koupelny s vanou, pračkou a umyvadlem a oddělené toalety. Obývací pokoj je přímo napojený na kuchyň, která je zařízena všemi spotřebiči. Myčka, plynový sporák, trouba a digestoř. Byt se dále nabízí vybavený tak, jak vidíte na fotografií. Stanice metra C "Kobylisy" je od domu vzdálena jednu zastávku autobusem nebo 10 minut chůze. Přímo v lokalitě najdeme kompletní občanskou vybavenost - mateřské školy, školky hypermarket Albert několik dalších menších obchodů. Byt je k dispozici od 1.6.2026. Zálohové platby už obsahují zálohy na elektřinu, plyn a pojištění domácnosti.

 
zobrazit více
 
 
 


Doplňující informace:

ID inzerátu ESO: 4281483
Inzerát vydán: 29.09.2024
Inzerát aktualizován: 26.02.2026
ID zakázky v RK: 5480
Budova je z: Panel
Stav: Velmi dobrý
Vlastnictví: Osobní
Umístění: Velmi dobrý
Obytná plocha: 66 m2
Lodžie: ANO
Užitná plocha: 66 m2
Podlahová plocha: 66 m2
Energetická náročnost budovy:
C - Úsporná
 
 

 

Bleskový dotaz makléři

K pronájmu, Byt 3+1, 66 m2, Praha 8, Košťálkova

Text dotazu *
Váš telefon *
Váš e-mail
Zobrazit kontaktní informace
Odeslat
 
 
 
 

Ve schránce je 0 inzerátů.

zobrazit celou schránku
 
 

Nalezli jsme dalších 56 nemovitostí v podobné ceně.

 
 
reklama