K pronájmu, Byt 3+kk, 68 m2, Praha 4, Pastevců

 
 
nový
 
Lokalita:
Praha 4, Pastevců
 
 
Cena:
26 900 Kč / za nemovitost
 
vratná jistota, náklady na bydlení 6.000,-Kč vč. elektřiny, poplatek za podnájem
 
Nabídněte prodejci Vaši cenu 
 
 

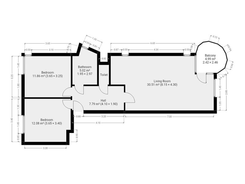
K dlouhodobému podnájmu Vám nabízíme krásný, kompletně zařízený byt o dispozici 3+kk, 68m2 se sklepem a balkonem. Byt se nachází ve 3. NP cihlového domu ve velmi klidné lokalitě rezidenční čtvrti, nedaleko pražského Chodova. Skládá se z centrální vstupní chodby, dětského pokoje, ložnice, samostatné koupelny s vanou i sprchovým koutem, pračkou a umyvadlem, toalety a obývacího pokoje společného s kuchyňským koutem a vstupem na prostorný balkon. Velkou výhodou bytu jsou jeho úložné prostory v celkem 2 vestavné šatní skříně a sklep. Dále se byt nabízí kompletně zařízený tak, jak vidíte na fotografií. Dům se nachází v klidné části Prahy - lokalita Újezd u Průhonic. V širším okolí najdeme kompletní občanskou vybavenost - základní i mateřské školy, spojení MHD na Chodov nebo Opatov díky autobusové zastávce vzdálené od domu cca 3 minuty chůze. Pro sportovní nebo turistické vyžití můžete využít nedaleký Milíčkovský les. Od domu je výborné napojení na dálnici D1. Byt je k dispozici k okamžitému, dlouhodobému bydlení. Zálohové platby již obsahují zálohy na elektřinu a pojištění domácnosti.

 
zobrazit více
 
 
 


Doplňující informace:

ID inzerátu ESO: 4391901
Inzerát vydán: 20.03.2026
ID zakázky v RK: 7472
Budova je z: Cihla
Stav: Velmi dobrý
Vlastnictví: Osobní
Umístění: Velmi dobrý
Obytná plocha: 68 m2
Balkón: ANO
Užitná plocha: 68 m2
Podlahová plocha: 68 m2
Energetická náročnost budovy:
G - Mimořádně nehospodárná
 
 

 

Bleskový dotaz makléři

K pronájmu, Byt 3+kk, 68 m2, Praha 4, Pastevců

Text dotazu *
Váš telefon *
Váš e-mail
Zobrazit kontaktní informace
Odeslat
 
 
 
 

Ve schránce je 0 inzerátů.

zobrazit celou schránku
 
 

Nalezli jsme dalších 100 nemovitostí v podobné ceně.

 
 
reklama