K pronájmu, Byt 3+kk, 74 m2, Praha 4, Na Zlatnici

 
 
 
Lokalita:
Praha 4, Na Zlatnici
 
 
Cena:
29 200 Kč / za nemovitost
 
vratná jistota, náklady na bydlení 4 900 Kč, poplatek za podnájem
 
Nabídněte prodejci Vaši cenu 
 
 

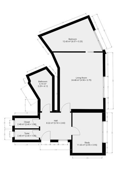
K dlouhodobému podnájmu nabízíme krásný byt o dispozici 3+kk v klidné lokalitě Praha 4 - Podolí. Byt o celkové výměře 74 m2 se nachází v 1. patře cihlového domu s výtahem. K bytu patří i komora a uzamykatelná terasa vedle bytu. Byt se nabízí částečně vybavený. Kuchyně disponuje lednicí s mrazákem, elektrickou troubou s plynovým sporákem a digestoří. Obývací část je zařízena jídelním stolem s 2 židlemi. Součástí ložnice je postel, věšák, noční stolek a lampička. V druhém pokoji najdeme pracovní stůl s židlí. Nábytek je možné po domluvě vyklidit. V koupelně je vana, umyvadlo, zrcadlo a pračka. Toaleta je umístěna samostatně. Vinylové podlahy, plastová okna, vytápění a ohřev vody plynovým kotlem, přípojka na internet. V okolí domu najdeme restaurace, kavárny, prodejny potravin, základní a mateřskou školu, dětské hřiště, lékárnu, národní kulturní památku Vyšehrad, městskou zeleň (Park Na Topolce, Park Antonína Engela, Vyšehradské sady, Lumírovy sady, Karlachovy sady), Plavecký stadion Podolí, Žluté lázně (areál se sportovními akcemi a občerstvením, nabízející indoboard, slackline, venkovní šachy, pétanque, beach volejbal, stolní tenis, nohejbal, dětský koutek, půjčovnu koloběžek, šlapadel, lodí, kol a bruslí), Sauny Vltava - Centrum duševního zdraví atd. Jen pár kroků chůze od domu je umístěna autobusová zastávka Doliny (rychlé spojení na stanice metra C - Pražského povstání, Pankrác a Budějovická) a v docházkové vzdálenosti se nachází zastávka tramvaje Podolská vodárna (pár minut jízdy na stanici metra B - Karlovo náměstí a dále do centra). Energetická třída: D (méně úsporná).

 
zobrazit více
 
 
 


Doplňující informace:

ID inzerátu ESO: 4305168
Inzerát vydán: 18.01.2025
Inzerát aktualizován: 03.03.2026
ID zakázky v RK: 5815
Budova je z: Cihla
Stav: Velmi dobrý
Vlastnictví: Osobní
Umístění: Velmi dobrý
Obytná plocha: 74 m2
Balkón: ANO
Terasa: ANO
Užitná plocha: 74 m2
Podlahová plocha: 74 m2
Energetická náročnost budovy:
D - Méně úsporná
 
 

 

Bleskový dotaz makléři

K pronájmu, Byt 3+kk, 74 m2, Praha 4, Na Zlatnici

Text dotazu *
Váš telefon *
Váš e-mail
Zobrazit kontaktní informace
Odeslat
 
 
 
 

Ve schránce je 0 inzerátů.

zobrazit celou schránku
 
 

Nalezli jsme dalších 88 nemovitostí v podobné ceně.

 
 
reklama