K pronájmu, Byt 3+kk, 74 m2, Praha 5, Toufarova

 
 
 
Lokalita:
Praha 5, Toufarova
 
 
Cena:
28 000 Kč / za nemovitost
 
+ poplatky cca 6.700 Kč + elektřina
 
Nabídněte prodejci Vaši cenu 
 
 

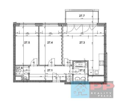
ID: 020201. Nabízíme k dlouhodobému pronájmu nezařízený byt 3+kk s balkonem (67m2 + 7m2) v rezidenčním projektu Galerie Toufarova. Blízko domu jsou obchody Billa a Makro. Na nedalekém sídlišti Stodůlky jsou mateřské a základní školy, poliklinika, sportovní střediska a metro linky B. Byt se nachází ve 4. patře s výtahem. Na oknech jsou venkovní stínicí rolety s programovatelným otevíráním a zavíráním. Pokoje jsou neprůchozí. V předsíni je velká šatní skříň. Kuchyňská linka s vestavěnými spotřebiči (lednice, myčka nádobí, elektrická varná deska s troubou). V koupelně je vana a 2x umyvadlo. Oddělené WC s vlastním umyvadlem. Bezpečnostní vstupní dveře. Vytápění centrální. K bytu patří jedno podzemní garážové stání a velký sklep (4m2). Pouhých 10 minut autem se nachází oblíbené obchodní centrum Metropole Zličín. Zde užijte pestrou paletu obchodů, restauraci a zábavu. Milovníci přírody ocení blízkost Prokopského a Dalejského údolí, které nabízejí možností relaxačních procházek či aktivních výletů. V případě zájmu o prohlídku mne prosím kontaktujte.

 
zobrazit více
 
 
 


Doplňující informace:

ID inzerátu ESO: 4388056
Inzerát vydán: 03.03.2026
Inzerát aktualizován: 11.03.2026
ID zakázky v RK: 0
Budova je z: Cihla
Stav: Velmi dobrý
Vlastnictví: Osobní
Umístění: Velmi dobrý
Obytná plocha: 74 m2
Balkón: ANO
Užitná plocha: 74 m2
Podlahová plocha: 74 m2
Plocha pozemku: 74 m2
Energetická náročnost budovy:
C - Úsporná
 
 

 

Bleskový dotaz makléři

K pronájmu, Byt 3+kk, 74 m2, Praha 5, Toufarova

Text dotazu *
Váš telefon *
Váš e-mail
Zobrazit kontaktní informace
Odeslat
 
 
 
 

Ve schránce je 0 inzerátů.

zobrazit celou schránku
 
 

Nalezli jsme dalších 93 nemovitostí v podobné ceně.

 
 
reklama