K pronájmu, Byt 3+kk, 77 m2, Praha 9, Zakšínská

 
 
 
Lokalita:
Praha 9, Zakšínská
 
 
Cena:
29 900 Kč / za nemovitost
 
vratná jistota, náklady na bydlení 6 900 Kč , poplatek za podnájem
 
Nabídněte prodejci Vaši cenu 
 
 

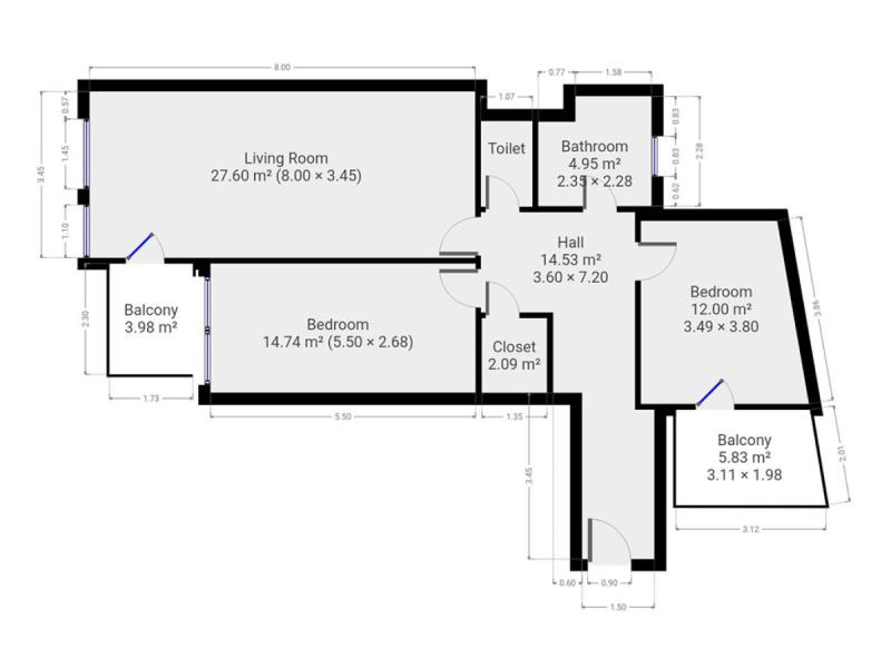
K dlouhodobému podnájmu nabízíme pěkný byt o dispozici 3+kk v atraktivní lokalitě Praha - Střížkov. Byt o celkové výměře 77 m2 se nachází ve čtvrtém patře cihlové novostavby s výtahem. K bytu patří i dva balkóny. V bytě je i komora. K bytu patří parkovací místo ve společné garáži. Byt se nabízí částečně vybavený. Kuchyně disponuje lednicí, elektrickou troubou, myčkou, sporákem, digestoří, mikrovlnnou troubou a jídelním stolem s židlemi. Obývací část je zařízena pohovkou a komodou s televizí. Součástí ložnice je postel a šatní skříň. Druhý pokoj je nezařízený. V koupelně najdeme vanu, umyvadlo a pračku. Toaleta je oddělená. Na chodbě jsou úložné skříně. V okolí domu jsou restaurace, kavárna, Park Střížkov, dětské hřiště, základní škola atd. Vynikající dostupnost na metro - stanice Střížkov je vzdálená deset minut chůze od domu. Byt je dostupný od 1.3.2026 Uvedena energetická kategorie G, jelikož nemáme k dispozici PENB. Byt pronajímá Ideální nájemce - služba, se kterou budete bydlet bezstarostně a za férových podmínek. Když se něco přihodí, k dispozici jsou správci, kteří s vámi vše vyřeší. Pomůžeme s veškerou administrativou, s nastavením plateb a zajistíme vám speciální pojištění. Pojďte bydlet s námi!

 
zobrazit více
 
 
 


Doplňující informace:

ID inzerátu ESO: 4068166
Inzerát vydán: 05.08.2022
Inzerát aktualizován: 31.01.2026
ID zakázky v RK: 3063
Budova je z: Cihla
Stav: Velmi dobrý
Vlastnictví: Osobní
Umístění: Velmi dobrý
Obytná plocha: 77 m2
Balkón: ANO
Užitná plocha: 77 m2
Podlahová plocha: 77 m2
 
 

 

Bleskový dotaz makléři

K pronájmu, Byt 3+kk, 77 m2, Praha 9, Zakšínská

Text dotazu *
Váš telefon *
Váš e-mail
Zobrazit kontaktní informace
Odeslat
 
 
 
 

Ve schránce je 0 inzerátů.

zobrazit celou schránku
 
 

Nalezli jsme dalších 57 nemovitostí v podobné ceně.

 
 
reklama