K pronájmu, Byt 3+kk, 78 m2, Praha 6, Komornická

 
 
 
Lokalita:
Praha 6, Komornická
 
 
Cena:
32 400 Kč / za nemovitost
 
vratná jistota, náklady na bydlení 6.000,-Kč poplatek za podnájem
 
Nabídněte prodejci Vaši cenu 
 
 

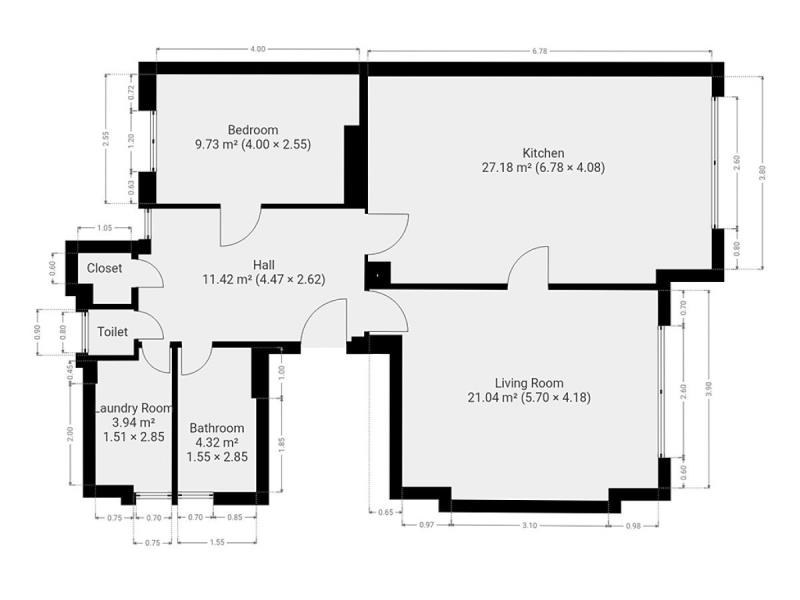
K dlouhodobému pronájmu nabízíme moderní a světlý byt 3+kk v klidné a atraktivní lokalitě Praha 6 – Dejvice. Byt o celkové ploše 78 m² se nachází v přízemí udržovaného domu bez výtahu. Součástí bytu je praktický sklep a parkovací stání na oploceném pozemku. Byt je nabízen nezařízený, což umožňuje zařídit si interiér podle vlastního vkusu. Kuchyň je vybavena indukční varnou deskou, myčkou, elektrickou troubou, digestoří a dostatkem úložného prostoru. Obývací část nabízí světlý a prostorný prostor vhodný jak pro sedací soupravu, tak například pro jídelní kout. K dispozici je také jeden samostatný pokoj, který může sloužit jako ložnice. Koupelna je vybavena vanou a umyvadlem, toaleta je samostatná. Součástí bytu je i praktická šatna či úložná místnost. V okolí domu je kompletní občanská vybavenost – obchod s potravinami Žabka, pošta, školy a školky, sportoviště, restaurace a lékařská péče. Pro volný čas je ideální Přírodní park Šárka, jen pár minut chůze od domu. Výbornou dopravní dostupnost zajišťují blízké zastávky autobusů a tramvají. Byt je k nastěhování ihned. Energetická třída: G (průkaz nedodán).

 
zobrazit více
 
 
 


Doplňující informace:

ID inzerátu ESO: 4364564
Inzerát vydán: 15.10.2025
Inzerát aktualizován: 07.11.2025
ID zakázky v RK: 6850
Budova je z: Kámen
Stav: Po rekonstrukci
Vlastnictví: Osobní
Umístění: Po rekonstrukci
Obytná plocha: 78 m2
Užitná plocha: 78 m2
Podlahová plocha: 78 m2
Energetická náročnost budovy:
G - Mimořádně nehospodárná
 
 

 

Bleskový dotaz makléři

K pronájmu, Byt 3+kk, 78 m2, Praha 6, Komornická

Text dotazu *
Váš telefon *
Váš e-mail
Zobrazit kontaktní informace
Odeslat
 
 
 
 

Ve schránce je 0 inzerátů.

zobrazit celou schránku
 
 

Nalezli jsme dalších 24 nemovitostí v podobné ceně.

 
 
reklama