K pronájmu, Byt 4+kk, 109 m2, České Budějovice, U Bašty

 
 
 
exkluzivně
 
Lokalita:
České Budějovice, U Bašty
 
 
Cena:
34 000 Kč / za nemovitost
 
 
Nabídněte prodejci Vaši cenu 
 
 

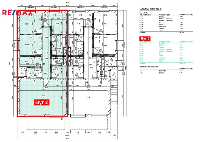
Nabízím k podnájmu nadstandardní nový byt 4+kk (109 m2) se zahradou (335 m2) a dvěma parkovacími místy. Bytová jednotka se nachází v 1.NP novostavby Viladomu Leona, v ulici U Bašty 2927, ve výjimečné lokalitě, kde jste jen několik stovek metrů od obchodní zóny Globus a přitom v naprostém klidu s výhledem na Vrbenské rybníky. Byt má samostatný vstup. Ve výhradním užívaní nájemce je velká zahrada obklopující dům. Do výhradního užívání patří i 2 parkovací místa na parkovací ploše před domem. Dispozičně je byt řešen jako 4+kk, kde najdete částečně vybavený obývací pokoj s kvalitní, kompletně vybavenou, kuchyňskou linkou a vstupem na prostornou terasu, tři samostatné pokoje, prostornou komoru, technickou místnost s přípojkou na pračku, koupelnu s WC, vanou i sprchovým koutem a druhé samostatné WC. Půdorys a výměry místností najdete ve fotogalerii. V celé jednotce jsou na podlaze kvalitní dlažby a lepený vinyl, bezfalcové vnitřní dveře Sapeli a LED osvětlení. Okna plastová s trojsklem. Ohřev teplé vody je zajištěn elektrickým bojlerem umístěným v technické místnosti. O tepelnou pohodu v chladných dnech se starají elektrické podlahové topné folie s možností přesné regulace termostaty umístěnými v každé místnosti. V teplých letních dnech oceníte venkovní elektricky ovládané předokenní žaluzie na všech oknech. O příjemné klima po celý rok se postará rekuperace vzduchu. Bonusem této jednotky je její připojení na samostatnou malou fotovoltaickou elektrárnu (4,1 kWp) instalovanou na střeše objektu, která pomůže budoucímu nájemci výrazně snížit účet za elektřinu. Pouze pro nekuřáky bez domácích mazlíčků. Podnájemní smlouva minimálně na 1 rok. Nájemné 34 000 Kč + záloha na energie 5 000 Kč, vratná kauce 50 000 Kč. Provize RK 1x měsíční nájem. Pro další informace nebo termín prohlídky kontaktujte makléře. Pronajímající si vyhrazuje právo vybrat nájemce na základě jím zvolených kritérií.

 
zobrazit více
 
 
 


Doplňující informace:

ID inzerátu ESO: 4370030
Inzerát vydán: 14.11.2025
Inzerát aktualizován: 12.03.2026
ID zakázky v RK: 421259
Budova je z: Smíšená
Stav: Velmi dobrý
Vlastnictví: Osobní
Umístění: Velmi dobrý
Obytná plocha: 109 m2
Terasa: 10m2
Užitná plocha: 109 m2
Plocha zahrady: 335 m2
Energetická náročnost budovy:
C - Úsporná
 
 

 

Bleskový dotaz makléři

K pronájmu, Byt 4+kk, 109 m2, České Budějovice, U Bašty

Text dotazu *
Váš telefon *
Váš e-mail
Zobrazit kontaktní informace
Odeslat
 
 
 
 

Ve schránce je 0 inzerátů.

zobrazit celou schránku
 
 

Nalezli jsme dalších 607 nemovitostí v podobné ceně.

 
 
reklama