K pronájmu, Byt 4+kk, 127 m2, Praha 4, U zeleného ptáka

 
 
 
exkluzivně
 
Lokalita:
Praha 4, U zeleného ptáka
 
 
Cena:
38 000 Kč / za nemovitost
 
zúčtovatelné popl. 8.900 Kč + přepis elektřiny; kauce 38.0000 Kč; NEPLATÍTE PROVIZI
 
Nabídněte prodejci Vaši cenu 
 
 

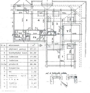
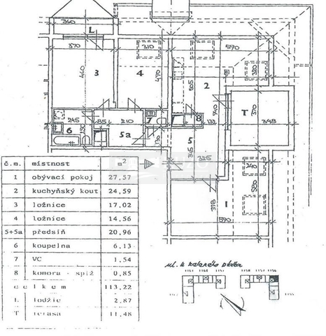
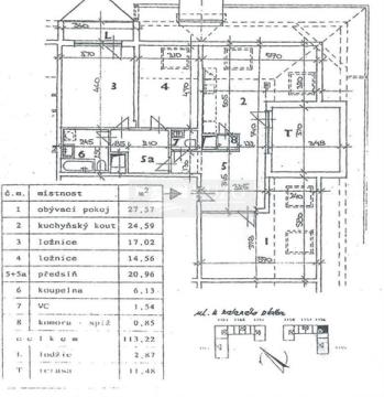
Nabízíme k pronájmu příjemný slunný byt v klidné části Kunratic. Jedná se o byt 4+kk, kde jsou všechny pokoje neprůchozí, výraznou dominantou je potom terasa s výhledem na Kunratice. Jeden z pokojů má i vlastní lodžii. V bytě je koupelna s pračkou a WC, další WC je samostatné. Byt je situovaný ve 3. patře s výtahem (výtah jede pouze do 2. patra). V okolí je veškerá občanská vybavenost, do OC Westfield Chodov je to 5 minut autem. NEPLATÍTE PROVIZI.

 
zobrazit více
 
 
 


Doplňující informace:

ID inzerátu ESO: 4377773
Inzerát vydán: 03.01.2026
Inzerát aktualizován: 23.02.2026
ID zakázky v RK: 22137
Budova je z: Smíšená
Stav: Velmi dobrý
Vlastnictví: Osobní
Umístění: Velmi dobrý
Obytná plocha: 127 m2
Lodžie: 3m2
Terasa: 11m2
Užitná plocha: 113 m2
Podlahová plocha: 127 m2
Plocha sklepa: 4 m2
Energetická náročnost budovy:
G - Mimořádně nehospodárná
 
 

 

Bleskový dotaz makléři

K pronájmu, Byt 4+kk, 127 m2, Praha 4, U zeleného ptáka

Text dotazu *
Váš telefon *
Váš e-mail
Zobrazit kontaktní informace
Odeslat
 
 
 
 

Ve schránce je 0 inzerátů.

zobrazit celou schránku
 
 

Nalezli jsme dalších 42 nemovitostí v podobné ceně.

 
 
reklama