K pronájmu, Kanceláře, Kopřivnice, Československé armády

 
 
 
Lokalita:
Kopřivnice, Československé armády
 
 
Cena:
20 000 Kč / za nemovitost
 
 
uvedená cena je: včetně poplatků, k jednání, bez DPH Nabídněte prodejci Vaši cenu 
 
 

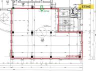
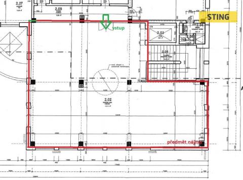
Nabízíme k pronájmu jedinečné kancelářské prostory v Kopřivnici na ulici Československé armády v budově, ve které sídlí Komerční banka. Jedná se o open space kanceláře, které se nachází v 2NP budovy. V patře je sociální zázemí včetně kuchyňky. Vedle objektu se nachází veřejné neplacené parkoviště Celý prostor je kompletně prosklený., Ideální dopravní dostupnost. Výměra činí 168 m2. Možnost odkoupení nábytku dle domluvy. Nájem včetně služeb ve výši 25.000 ,- kč bez DPH. Vratná kauce ve výší dvou nájmu včetně služeb. NEPLATÍ SE PROVIZE RK. V případě vzniklých dotazů mě neváhejte kontaktovat.

 
zobrazit více
 
 
 


Doplňující informace:

ID inzerátu ESO: 4234645
Inzerát vydán: 02.04.2024
Inzerát aktualizován: 15.04.2026
ID zakázky v RK: 124034
Budova je z: Panel
Stav: Velmi dobrý
Umístění: Velmi dobrý
Užitná plocha: 168 m2
 
 

 

Bleskový dotaz makléři

K pronájmu, Kanceláře, Kopřivnice, Československé armády

Text dotazu *
Váš telefon *
Váš e-mail
Zobrazit kontaktní informace
Odeslat
 
 
 
 

Ve schránce je 0 inzerátů.

zobrazit celou schránku
 
 

Nalezli jsme dalších 5 nemovitostí v podobné ceně.

 
 
reklama