K pronájmu, Kanceláře, Kunovice, Na Záhonech

 
 
 
Lokalita:
Kunovice, Na Záhonech
 
 
Cena:
Info o ceně u RK
 
volejte makléři, cena bez energií., bez DPH, bez poplatků, včetně právního servisu, cena k jednání
 
uvedená cena je: bez poplatků, včetně právního servisu, k jednání, bez DPH Nabídněte prodejci Vaši cenu 
 
 

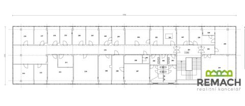
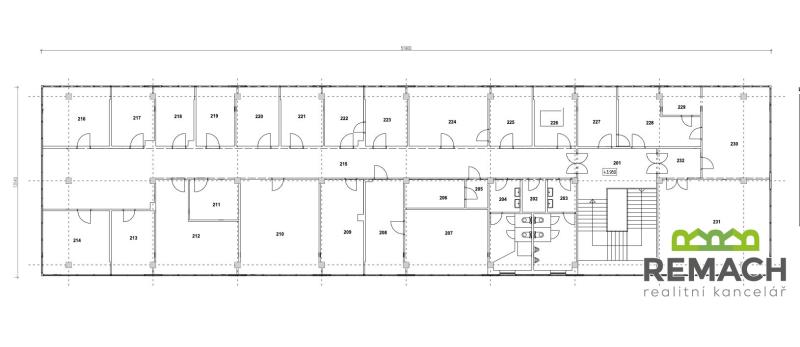
Pronájem kancelářských prostor – ulice Na Záhonech, Kunovice Nabízíme k pronájmu administrativní kancelářské prostory v komerčním areálu na ulici Na Záhonech v Kunovicích. Objekt prochází kompletní rekonstrukcí, která zajistí moderní standard a komfortní pracovní prostředí. Aktuálně je k dispozici 18 samostatných kanceláří různých velikostí. Prostory budou připraveny k nastěhování od února 2026. Výhody a vybavení: modernizovaná administrativní budova možnost parkování v areálu uzavřený a hlídaný areál – bezpečný přístup možnost pronájmu skladovacích či výrobních prostor ve stejném areálu vhodné pro firmy i živnostníky, sídla firem nebo servisní pracoviště Lokalita nabízí velmi dobrou dostupnost z hlavní komunikace a návaznost na průmyslovou část Kunovic. Ideální příležitost pro společnosti hledající kvalitní kancelářské zázemí s možností rozšíření o další provozní plochy. Rádi vám poskytneme více informací k dostupným kancelářím včetně půdorysů a cenových možností. Neváhejte nás kontaktovat pro rezervaci prostoru nebo schůzku.

 
zobrazit více
 
 
 


Doplňující informace:

ID inzerátu ESO: 4389351
Inzerát vydán: 11.03.2026
ID zakázky v RK: 3465
Budova je z: Panel
Stav: Po rekonstrukci
Umístění: Po rekonstrukci
Užitná plocha: 500 m2
Energetická náročnost budovy:
G - Mimořádně nehospodárná
 
 

 

Bleskový dotaz makléři

K pronájmu, Kanceláře, Kunovice, Na Záhonech

Text dotazu *
Váš telefon *
Váš e-mail
Zobrazit kontaktní informace
Odeslat
 
 
 
 

Ve schránce je 0 inzerátů.

zobrazit celou schránku
 
 

Nalezli jsme dalších 12 nemovitostí v podobné ceně.

 
 
reklama