K pronájmu, Kanceláře, Ostrava, Přívozská

 
 
 
Lokalita:
Ostrava, Přívozská
 
 
Cena:
7 000 Kč / za nemovitost
 
+ energie (ele.,plyn,voda), včetně poplatků, + provize RK
 
uvedená cena je: včetně poplatků, bez provize Nabídněte prodejci Vaši cenu 
 
 

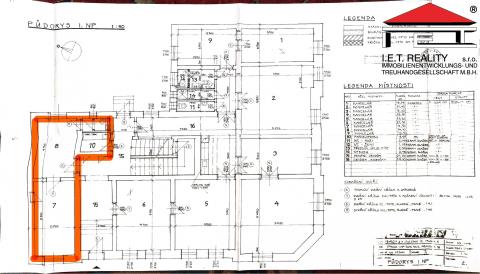
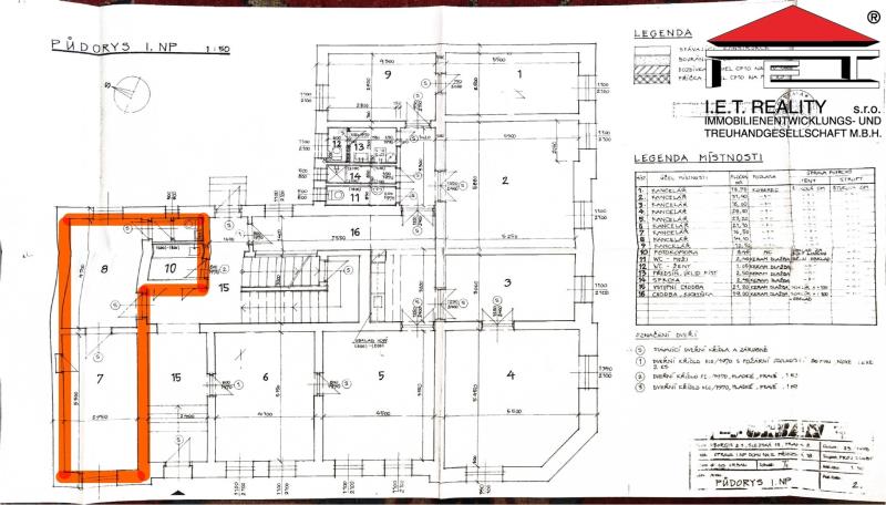
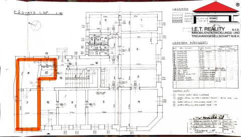
Nabízíme k pronájmu útulné kanceláře v centru Ostravy. Jedná se o dvě kanceláře o výměře 14 a 16 m2 + sociální zařízení. Jedná kancelář je orientována do ulice směrem na Husův sad a druhá do dvora. Kanceláře jsou nově vymalované. Mají vlastní zdroj topení – 2x plynové gamaty. Ke kancelářím je možné si pronajmout parkovací místo ve dvoře. Majitel požaduje kauci ve výši dvou měsíčních nájmů. Provize realitnímu makléři činí jeden nájem. Díky poloze kanceláře v centru, budete mít všude kousek. Doporučuji prohlídku.

 
zobrazit více
 
 
 


Doplňující informace:

ID inzerátu ESO: 4363244
Inzerát vydán: 07.10.2025
Inzerát aktualizován: 22.01.2026
Budova je z: Cihla
Stav: Dobrý
Umístění: Dobrý
Užitná plocha: 34 m2
Podlahová plocha: 38 m2
Zastavěná plocha: 40 m2
Energetická náročnost budovy:
G - Mimořádně nehospodárná
 
 

 

Bleskový dotaz makléři

K pronájmu, Kanceláře, Ostrava, Přívozská

Text dotazu *
Váš telefon *
Váš e-mail
Zobrazit kontaktní informace
Odeslat
 
 
 
 

Ve schránce je 0 inzerátů.

zobrazit celou schránku
 
 

Nalezli jsme dalších 36 nemovitostí v podobné ceně.

 
 
reklama