K pronájmu, Kanceláře, Ostrava, Škrobálkova

 
 
 
Lokalita:
Ostrava, Škrobálkova
 
 
Cena:
40 000 Kč / za nemovitost
 
 
Nabídněte prodejci Vaši cenu 
 
 

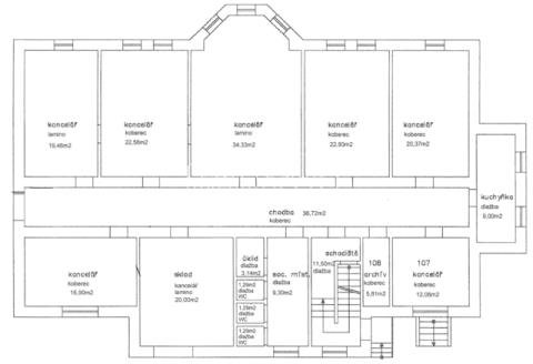
Naše společnost nabízí k pronájmu kanceláře na ulici Škrobálkova v Ostravě-Kunčičkách o celkové ploše 173m2. Kanceláře je možné pronajmout i samostatně. Kanceláře se nachází v 1.NP a mají samostatný vstup. Součástí je sociální zařízení a společná kuchyňka nebo archív. Kanceláří je k dispozici celkem 8 o velikostech od 12m2 do 35m2. Vytápěny jsou plynovým kotlem. Je zde možnost úpravy dispozice dle zájemce, která bude následně zohledněna v nájmu. K dispozici je taky parkovací plocha za uzavřenou branou. V objektu je také k dispozici nabíjení pro elektromobily. Kanceláře se nachází v klidné části v Ostravě-Kunčičkách hned vedle vlakové zastávky Ostrava-Kunčičky. Dojezd do centra Ostravy 7 minut autem. V případě zájmu kontaktujte Martina z Kaktusu.

 
zobrazit více
 
 
 


Doplňující informace:

ID inzerátu ESO: 4336579
Inzerát vydán: 29.05.2025
Inzerát aktualizován: 23.11.2025
ID zakázky v RK: 5599
Budova je z: Smíšená
Stav: Dobrý
Umístění: Dobrý
Užitná plocha: 173 m2
Zastavěná plocha: 178 m2
Energetická náročnost budovy:
G - Mimořádně nehospodárná
 
 

 

Bleskový dotaz makléři

K pronájmu, Kanceláře, Ostrava, Škrobálkova

Text dotazu *
Váš telefon *
Váš e-mail
Zobrazit kontaktní informace
Odeslat
 
 
 
 

Ve schránce je 0 inzerátů.

zobrazit celou schránku
 
 

Nalezli jsme dalších 27 nemovitostí v podobné ceně.

 
 
reklama