K pronájmu, Kanceláře, Příbram, V Lukách

 
 
 
exkluzivně
 
Lokalita:
Příbram, V Lukách
 
 
Cena:
70 000 Kč / za nemovitost
 
 
Nabídněte prodejci Vaši cenu 
 
 

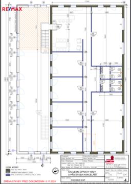
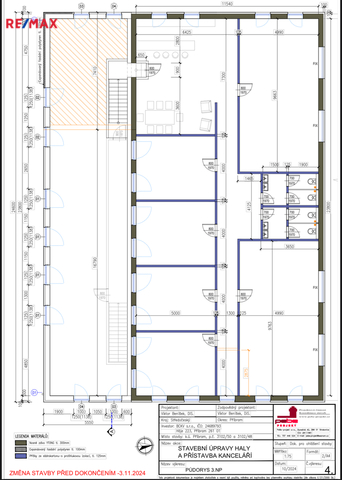
Nabízíme k pronájmu moderní kancelářské prostory o celkové výměře 280 m² v atraktivní lokalitě v Příbrami. Prostory jsou aktuálně ve výstavbě, což dává budoucímu nájemci jedinečnou možnost přizpůsobit dispoziční řešení i vybavení podle vlastních potřeb a preferencí. Fotografie jsou tedy pouze vizualizace. Kanceláře budou součástí nově vznikajícího komerčního objektu s důrazem na moderní technologie, energetickou efektivitu a reprezentativní vzhled. Vhodné pro firmy hledající kvalitní zázemí v dynamicky se rozvíjející oblasti. Hlavní výhody: Podlahová plocha 280 m² Možnost individuálního dispozičního řešení Reprezentativní novostavba Dostatek parkovacích míst Skvělá dostupnost z centra i dálnice D4 Vhodné pro kanceláře, showroom, sídlo firmy apod. V případě zájmu o bližší informace či schůzku nás neváhejte kontaktovat. Rádi s vámi probereme možnosti a připravíme návrh prostoru na míru vašemu podnikání. Nájemné: 70.000,- Kč + zálohy na služby Kauce: 140.000,- Kč Provize RK: 70.000,- Kč + DPH

 
zobrazit více
 
 
 


Doplňující informace:

ID inzerátu ESO: 4347637
Inzerát vydán: 22.07.2025
Inzerát aktualizován: 25.11.2025
ID zakázky v RK: 419363
Budova je z: Cihla
Stav: Velmi dobrý
Umístění: Velmi dobrý
Užitná plocha: 280 m2
Energetická náročnost budovy:
G - Mimořádně nehospodárná
 
 

 

Bleskový dotaz makléři

K pronájmu, Kanceláře, Příbram, V Lukách

Text dotazu *
Váš telefon *
Váš e-mail
Zobrazit kontaktní informace
Odeslat
 
 
 
 

Ve schránce je 0 inzerátů.

zobrazit celou schránku
 
 

Nalezli jsme dalších 2 nemovitostí v podobné ceně.

 
 
reklama