K pronájmu, Kanceláře, Praha 5, Janáčkovo nábřeží

 
 
nový
 
Lokalita:
Praha 5, Janáčkovo nábřeží
 
 
Cena:
95 000 Kč / za nemovitost
 
+ poplatky 10.000,-Kč (včetně elektřiny a plynu)
 
uvedená cena je: bez provize Nabídněte prodejci Vaši cenu 
 
 

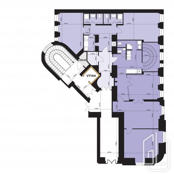
GLJ Partners exkluzivně nabízí k pronájmu prostorný kancelářský prostor v atraktivní lokalitě Praha 5 - Smíchov, ulice Janáčkovo nábřeží. Kancelář se nachází v blízkosti autobusové zastávky Středočeská, což zajišťuje výbornou dostupnost MHD. Prostory jsou vhodné pro rekonstrukci dle potřeb nájemce, přičemž majitel je ochoten komunikovat ohledně dělení a úpravy prostor. Dispozice: 7 samostatných pracovních místností, 2 kuchyňky, 6 toalet Podlahová plocha: 221 m2 (1. PP 77 m2, 1. NP 144 m2) Patro: 1. PP a 1. NP Nájemné: 95 000 Kč / měsíc K nastěhování: dle dohody Vybavení a dispozice: Kancelář je před rekonstrukcí, což umožňuje upravit prostory přesně podle potřeb nájemce. Celkem 7 samostatných pracovních místností, 2 kuchyňky a 6 toalet zajišťují komfortní pracovní prostředí. Majitel je ochoten diskutovat rozdělení a financování rekonstrukce. Lokalita: Prostory se nachází na Praze 5 - Smíchov, velmi blízko tramvajové zastávky Zborovská a stanice metra Anděl. Lokalita nabízí kompletní občanskou vybavenost, restaurace, kavárny a výbornou dopravní dostupnost. Prohlídky jsou možné po předchozí domluvě. Kontaktujte nás pro více informací! ID zakázky: J1378

 
zobrazit více
 
 
 


Doplňující informace:

ID inzerátu ESO: 4381819
Inzerát vydán: 28.01.2026
ID zakázky v RK: J1378
Budova je z: Cihla
Stav: Před rekonstrukcí
Umístění: Před rekonstrukcí
Užitná plocha: 221 m2
 
 

 
 
 

Bleskový dotaz makléři

K pronájmu, Kanceláře, Praha 5, Janáčkovo nábřeží

Text dotazu *
Váš telefon *
Váš e-mail
Zobrazit kontaktní informace
Odeslat
 
 
 
 

Ve schránce je 0 inzerátů.

zobrazit celou schránku
 
 

Nalezli jsme dalších 3 nemovitostí v podobné ceně.

 
 
reklama