K pronájmu, Kanceláře, Praha 1, Na Perštýně

 
 
 
Lokalita:
Praha 1, Na Perštýně
 
 
Cena:
165 000 Kč / za nemovitost
 
+ 1.350 služby + elektřina a plyn, vratná kauce ve výši 2 měsíčních nájmů
 
Nabídněte prodejci Vaši cenu 
 
 

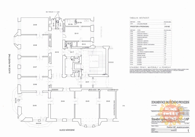
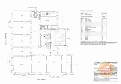
Nabízíme k pronájmu moderní, prostorné kancelářské prostory situované v historickém centru Starého Města, nacházející se ve druhém patře krásného domu s výtahem. Prostory jsou velice stylové - štukované stropy a na podlaze parkety. Dispozice: Prostory se skládají z příjímací haly, chodby, 6 samostatných místností, další 2 průchozí místnosti, denní místnost lze využít jako zázemí pro zaměstnance + menší sklad, 5 x toaleta, koupelna a čajová kuchyňka, 2 x balkon. Vysoké stropy a dřevěné parkety - to vše podtrhuje historický avšak moderní ráz kanceláře. Prostory jsou orientované do ulice Na Perštýně a Národní Dům se nachází jen pár kroků od nákupního centra Quadrio a Máj, zároveň několik minut pěšky do historického centra města. Perfektní občanská vybavenost: v okolí jsou krásné originální kavárny, obchody, a restaurace. Praha 1 - Staré Město je atraktivní lokalita v samém srdci Prahy s vynikající dopravní dostupností - stanice metra a tramvají Národní Třída 150m od domu. Půvabná část Prahy, jež je vhodná pro klienty, kteří vyhledávají jedinečnou atmosféru starobylých částí města. K dispozici od 1.5.2026

 
zobrazit více
 
 
 


Doplňující informace:

ID inzerátu ESO: 4387957
Inzerát vydán: 03.03.2026
Inzerát aktualizován: 18.03.2026
ID zakázky v RK: 78928
Budova je z: Cihla
Stav: Velmi dobrý
Umístění: Velmi dobrý
Užitná plocha: 319 m2
Energetická náročnost budovy:
G - Mimořádně nehospodárná
 
 

 

Bleskový dotaz makléři

K pronájmu, Kanceláře, Praha 1, Na Perštýně

Text dotazu *
Váš telefon *
Váš e-mail
Zobrazit kontaktní informace
Odeslat
 
 
 
 

Ve schránce je 0 inzerátů.

zobrazit celou schránku
 
 

Nalezli jsme dalších 8 nemovitostí v podobné ceně.

 
 
reklama