K pronájmu, Kanceláře, Praha 1, Opletalova

 
 
 
Lokalita:
Praha 1, Opletalova
 
 
Cena:
32 185 Kč / za nemovitost
 
+ paušál (úklid. ostraha) 3.098 Kč + záloha na otop 2.733 Kč + elektřina, vodné, odvoz odpadu dle počtu osob
 
Nabídněte prodejci Vaši cenu 
 
 

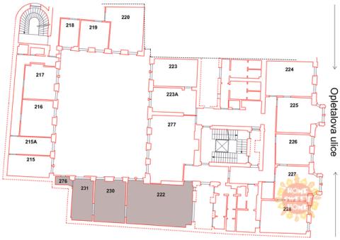
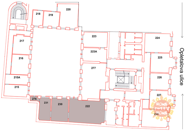
Tiché, světlé kancelářské prostory k pronájmu, které se nachází ve 2. patře s okny do klidného vnitrobloku v lukrativní lokalitě Prahy 1 v Opletalově ulici. Jedná se o tři nezařízené kanceláře o celkové ploše 91 m² s vlastní kuchyňkou a toaletou. Kanceláře se nachází v bezprostřední blízkosti Václavského náměstí. V přízemí budovy je recepce a ostraha. Přístup do budovy je 24/7. Klimatizace, vytápěno etážově, na podlaze plovoucí podlaha, telefonní linky, internet, osvětlení, žaluzie a další. Tento kancelářský komplex leží na hlavní tepně mezi Hlavním nádražím a Václavským náměstím. Ihned k dispozici a zájemce neplatí provizi pro RK!

 
zobrazit více
 
 
 


Doplňující informace:

ID inzerátu ESO: 4372935
Inzerát vydán: 02.12.2025
ID zakázky v RK: 78740
Budova je z: Smíšená
Stav: Velmi dobrý
Umístění: Velmi dobrý
Užitná plocha: 91 m2
Energetická náročnost budovy:
G - Mimořádně nehospodárná
 
 

 

Bleskový dotaz makléři

K pronájmu, Kanceláře, Praha 1, Opletalova

Text dotazu *
Váš telefon *
Váš e-mail
Zobrazit kontaktní informace
Odeslat
 
 
 
 

Ve schránce je 0 inzerátů.

zobrazit celou schránku
 
 

Nalezli jsme dalších 20 nemovitostí v podobné ceně.

 
 
reklama