K pronájmu, Kanceláře, Praha 5, Strakonická

 
 
 
Lokalita:
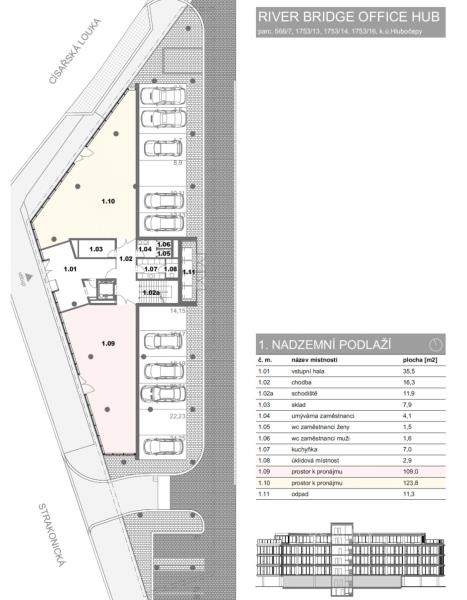
Praha 5, Strakonická
 
 
Cena:
15 Kč / za nemovitost
 
 
Nabídněte prodejci Vaši cenu 
 
 

Soccer Reality zprostředkuje k pronájmu exkluzivní kancelářské prostory v nově vzniklém administrativním komplexu RIVER BRIDGE OFFICE HUB. Tento moderní kancelářský areál se nachází v žádané lokalitě Prahy 5, přímo na Strakonické ulici. K dispozici jsou kancelářské prostory v 1. NP o velikosti 123,8 m2 a 109 m2. Prostory budou dokončené ve stavu shell&core, což nabízí skvělou příležitost vytvořit si pracovní prostředí přesně podle svých představ. Každou jednotku lze pronajmout samostatně, případně využít celý prostor 232,8 m² jako soukromé patro pro váš tým. K nastěhování od 1.3. 2026 Cena nájemného: Prvních 9 měsíců = 7,99 EUR/m2 (bez vnitřního vybavení) Prvních 3 měsíců = 7,99 EUR/m2 (se základním vnitřním vybavením (podlahová krytina, osvětlení) Plné nájemné = 14,99 EUR/m2 Služby = 140 Kč/m2 Sociální zázemí 66m2 = zdarma Parkovné: - krytá parkovací stání pod budovou €115/měsíc - venkovní parkovací stání €85/měsíc - parkovací stání za mostem 1.010Kč/měsíc River Bridge Office Hub nabízí moderní pracovní prostředí v jedné z nejžádanějších pražských lokalit s výbornou dopravní dostupností a širokým zázemím služeb. Zaujala vás nabídka? Zavolejte nebo napište – rád vám prostor osobně představím.

 
zobrazit více
 
 
 


Doplňující informace:

ID inzerátu ESO: 4371051
Inzerát vydán: 21.11.2025
Inzerát aktualizován: 05.01.2026
ID zakázky v RK: 66492
Budova je z: Smíšená
Stav: Velmi dobrý
Umístění: Velmi dobrý
Užitná plocha: 109 m2
Energetická náročnost budovy:
A - Mimořádně úsporná
 
 

 
 
 

Bleskový dotaz makléři

K pronájmu, Kanceláře, Praha 5, Strakonická

Text dotazu *
Váš telefon *
Váš e-mail
Zobrazit kontaktní informace
Odeslat
 
 
 
 

Ve schránce je 0 inzerátů.

zobrazit celou schránku
 
 

Nalezli jsme dalších 7 nemovitostí v podobné ceně.

 
 
reklama