K pronájmu, Kanceláře, 117 m2, Chomutov, Školní

 
 
 
Lokalita:
Chomutov, Školní
 
 
Cena:
21 416 Kč / za nemovitost
 
 
uvedená cena je: včetně provize Nabídněte prodejci Vaši cenu 
 
 

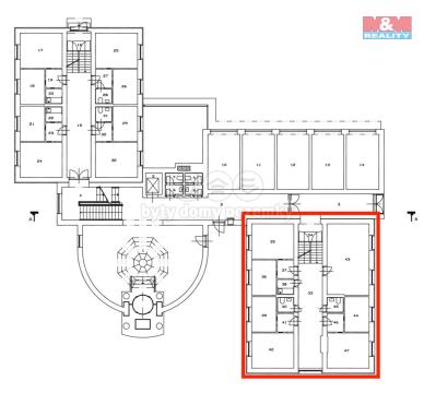
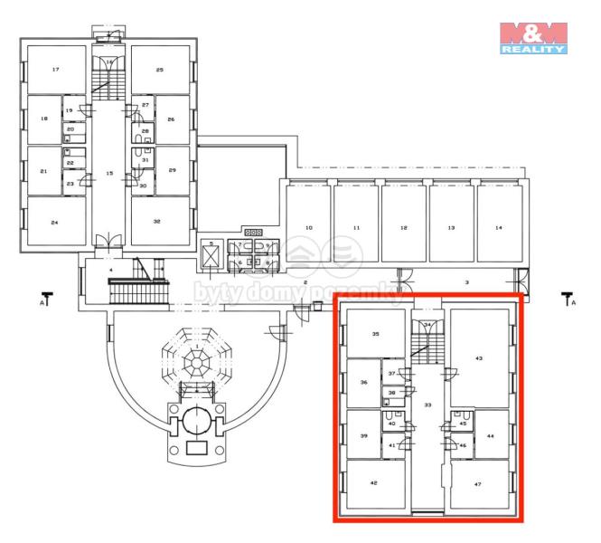
Hledáte kancelářské prostory k pronájmu a nemůžete je najít? Již nemusíte hledat dál. Dovolujeme si Vám nabídnout kancelářské prostory na Školní ulici v centru Chomutova. Jedná se o administrativní budovu. Kanceláře se nachází v 2. nadzemním podlaží s výtahem v mezipatře. Kanceláří je celkem 7, některé jsou průchozí. Součástí je zázemí - dvoje toalety a kuchyňka. Měsíční nájemné činní 21.416 Kč bez energií, kauce je požadována ve výši dvou měsíčních nájmů, poplatek RK je ve výši jednoho měsíčního nájmu. K dispozici jsou parkovací místa na parkovišti u budovy, případně garážové stání, obojí příplatkem k nájmu. Velkou předností těchto prostor je jejich poloha, která poskytuje rychlou dostupnost k veškeré občanské vybavenosti jenž je na dosah ruky. Zaujala Vás tato nabídka? Tak neváhejte a domluvte si prohlídku ještě dnes.

 
zobrazit více
 
 
 


Doplňující informace:

ID inzerátu ESO: 4352766
Inzerát vydán: 20.08.2025
Inzerát aktualizován: 01.09.2025
ID zakázky v RK: 900917635
Budova je z: Cihla
Stav: Dobrý
Vlastnictví: Osobní
Umístění: Dobrý
Nebytová plocha: 117 m2
Užitná plocha: 117 m2
Energetická náročnost budovy:
G - Mimořádně nehospodárná
 
 

 

Bleskový dotaz makléři

K pronájmu, Kanceláře, 117 m2, Chomutov, Školní

Text dotazu *
Váš telefon *
Váš e-mail
Zobrazit kontaktní informace
Odeslat
 
 
 
 

Ve schránce je 0 inzerátů.

zobrazit celou schránku
 
 

Nalezli jsme dalších 11 nemovitostí v podobné ceně.

 
 
reklama