K pronájmu, Kanceláře, 38 m2, Bohumín, Čs. armády

 
 
 
Lokalita:
Bohumín, Čs. armády
 
 
Cena:
6 080 Kč / za nemovitost
 
 
uvedená cena je: včetně provize Nabídněte prodejci Vaši cenu 
 
 

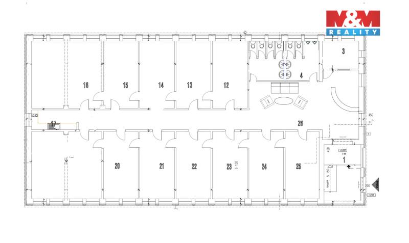
Nabízíme pronájem reprezentativního kancelářského prostoru v centru obce Pudlov. Tento prostor o užitné ploše 38 m² se nachází v 1. nadzemním podlaží a nabízí ideální prostředí pro vaši firmu. Interiér je ve velmi dobrém stavu a připraven k okamžitému užívání. Kancelář je vybavena klimatizací. Možnost vybavení nábytkem a připojení k internetu. Administrativní budova je nyní bezbariérová včetně sociálního zařízení a sprchy. K dispozici je i nová kuchyňka s lednicí, mikrovlnnou troubou a varnou konvicí. Celá budova je zabezpečena kamerovým systémem a ostrahou. Měsíční najemné činí 6.080 Kč (Spotřeba elektřiny v kanceláři dle skutečnosti - měsíční odečty měřičů, spotřeba tepla (plynu) v kanceláři - poměrové rozdělení dle m2 pronajaté plochy, Společné prostory-chodby, kuchyňka, WC – podíl na úklidu, osvětlení, dodávce tepla, spotřebě vody činí 500,- Kč/měsíc (paušál)). Bližší informace u makléře.

 
zobrazit více
 
 
 


Doplňující informace:

ID inzerátu ESO: 4365314
Inzerát vydán: 21.10.2025
Inzerát aktualizován: 31.10.2025
ID zakázky v RK: 900923707
Stav: Velmi dobrý
Vlastnictví: Osobní
Umístění: Velmi dobrý
Nebytová plocha: 38 m2
Užitná plocha: 38 m2
Energetická náročnost budovy:
G - Mimořádně nehospodárná
 
 

 

Bleskový dotaz makléři

K pronájmu, Kanceláře, 38 m2, Bohumín, Čs. armády

Text dotazu *
Váš telefon *
Váš e-mail
Zobrazit kontaktní informace
Odeslat
 
 
 
 

Ve schránce je 0 inzerátů.

zobrazit celou schránku
 
 

Nalezli jsme dalších 14 nemovitostí v podobné ceně.

 
 
reklama