K pronájmu, Obchody, Hodonín, Cihlářská čtvrť

 
 
 
Lokalita:
Hodonín, Cihlářská čtvrť
 
 
Cena:
12 000 Kč / za nemovitost
 
+ zálohy na energie
 
Nabídněte prodejci Vaši cenu 
 
 

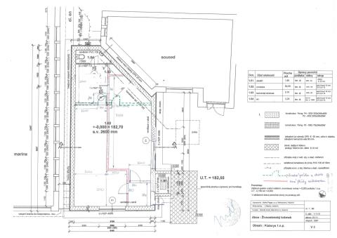
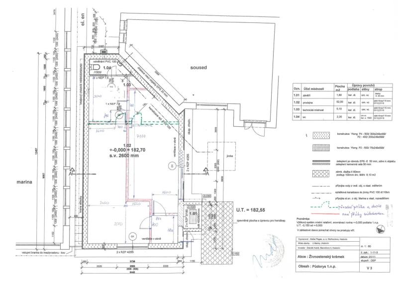
Pronájem nebytového prostoru v Hodoníně na ulici Cihlářská čtvrť v katastru nemovitostí vedený, jako zastavěná plocha a nádvoří o výměře 109 m2, obchod. Kolaudace prostoru – obchodu v roce 2016. V roce 2023 vydaný souhlas se změnou užívání na provozování kosmetických služeb. Celková užitná plocha 61 m2, bezbariérový vstup přímo z ulice, velká plastová okna (výlohy). Dispozice: zádveří 1,8 m2, prodejní plocha 52 m2 (rozdělena sádrokartonovou příčkou na 2 prostory) technická místnost (kuchyňka se skladem) 5,1 m2, WC s umyvadlem 2,2 m2. Vybavení: plastové vstupní dveře i okna (dvojskla) + parapety, rovná plechová střecha, povrch podlah dlažba, kovové zárubně, elektřina 220/380 (vlastní elektroměr, nízký a vysoký tarif, MND), voda (vlastní vodoměr, bojler na ohřev teplé vody, Vodárny a kanalizace Hodonín), plyn zaveden není, odpadní jímka (septik) společný s vedlejším nevyužívaným nebytovým prostorem (obchod – vývoz 1 ročně, kosmetika – vývoz 4x ročně), vytápění – klimatizace + stropní elektrické přímotopy, internet, osvětlení – obchodní prostor zářivky, v ostatních prostorách nástěnné světlo, 3x interiérové dveře. Prostor je vyklizený, ihned k dispozici. Majitelé požadují kauci ve výši 15.000,-Kč, která bude vrácena po skončená nájmu v případě, že prostor nebude poškozen a nebude dluh na nájemném a energiích.

 
zobrazit více
 
 
 


Doplňující informace:

ID inzerátu ESO: 4370549
Inzerát vydán: 18.11.2025
ID zakázky v RK: 55565
Budova je z: Cihla
Stav: Dobrý
Umístění: Dobrý
Užitná plocha: 61 m2
Energetická náročnost budovy:
G - Mimořádně nehospodárná
 
 

 

Bleskový dotaz makléři

K pronájmu, Obchody, Hodonín, Cihlářská čtvrť

Text dotazu *
Váš telefon *
Váš e-mail
Zobrazit kontaktní informace
Odeslat
 
 
 
 

Ve schránce je 0 inzerátů.

zobrazit celou schránku
 
 

Nalezli jsme dalších 11 nemovitostí v podobné ceně.

 
 
reklama