K pronájmu, Obchody, Karlovy Vary, Nová louka

 
 
 
exkluzivně
 
Lokalita:
Karlovy Vary, Nová louka
 
 
Cena:
120 000 Kč / za nemovitost
 
 
Nabídněte prodejci Vaši cenu 
 
 

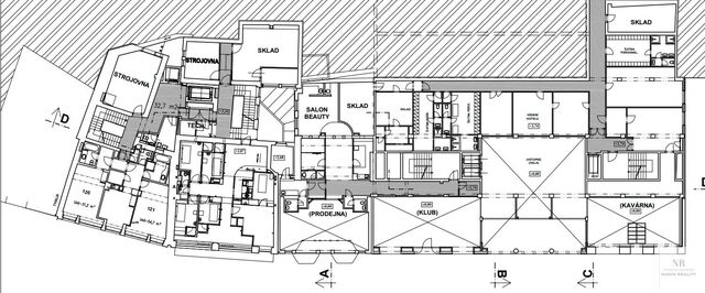
Exkluzivní nabídka pronájmu Beauty salon ve špičkovém čtyřhvězdičkovém hotelu v centru Karlových Varů. Nabízené prostory jsou umístěny v mezaninu hotelu. Možnost užívání výhradně za účelem provozování „SPA a WELLNESS“ (tj. rehabilita, rekondiční a relaxační centrum, poskytování masáží, fyzioterapie, provozování wellness zařízení, kosmetické služby, pedikúra, manikúra, provozování solárií, zařízení zdravotnického charakteru a poskytování dalších služeb, které s takovým zařízením obvykle souvisí). Prostory nabízí celkovou plochu 131 m2. Uvnitř naleznete šatny, toalety, sklady, kuchyňku. Jedná se o prestižní a vyhledávanou lokalitu v Karlových Varech na kolonádě, s veškerou občanskou vybaveností a výbornou dopravní dostupností vozem nebo MHD. Vzhledem ke své poloze, luxusnímu vybavení, stálé klientele se jedná o zajímavou podnikatelskou příležitost. Volný ihned po domluvě. Měsíční nájemné 120.000,- kč, kauce ve výši tříměsíčního nájemného + provize pro reliatní kancelář 120.000,- Kč. Zajímají vás podmínky pronájmu jakýchkoli prostor našeho hotelu? Neváhejte nás kontaktovat, uděláme vše, co bude v našich silách, abychom vám vyšli vstříc a byli jste spokojeni. Při komunikaci a informaci uvádějte číslo nabídky ID 476.

 
zobrazit více
 
 
 


Doplňující informace:

ID inzerátu ESO: 4175110
Inzerát vydán: 04.08.2023
Inzerát aktualizován: 18.01.2026
ID zakázky v RK: 0546
Budova je z: Cihla
Stav: Velmi dobrý
Umístění: Velmi dobrý
Užitná plocha: 131 m2
Zastavěná plocha: 131 m2
Energetická náročnost budovy:
G - Mimořádně nehospodárná
 
 

 

Bleskový dotaz makléři

K pronájmu, Obchody, Karlovy Vary, Nová louka

Text dotazu *
Váš telefon *
Váš e-mail
Zobrazit kontaktní informace
Odeslat
 
 
 
 

Ve schránce je 0 inzerátů.

zobrazit celou schránku
 
 

Nalezli jsme dalších 1 nemovitostí v podobné ceně.

 
 
reklama