K pronájmu, Obchody, Opava, Holasická

 
 
 
exkluzivně
 
Lokalita:
Opava, Holasická
 
 
Cena:
8 000 Kč / za nemovitost
 
+ služby + vratná kauce + odměna RK
 
Nabídněte prodejci Vaši cenu 
 
 

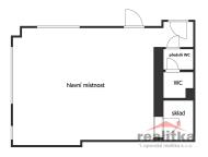
Nabízíme k pronájmu prostory 35 m2, Holasická ul., Opava-Kateřinky. Prostory jsou vhodné jako obchodní prostor, kadeřnictví, popřípadě sklady nebo výrobnu. K dispozici je jedna velká místnost, WC s předsíňkou a technická místnost. Prostory se nacházejí v přízemní objektu uprostřed sídliště. Vytápění je ústředním centrálním topením. Cena pronájmu je 8.000,-Kč/měsíc + služby 4.000,-Kč (elektřina, topení a vodné a stočné). Provize RK je jednorázově 8.000,-Kč. Majitel požaduje při podpisu smlouvy kauci ve výši 16.000,-Kč. Nebytové prostory jsou již volné a dají se okamžitě pronajmout. Zájemci o prohlídku dle domluvy s panem Hořínkem..

 
zobrazit více
 
 
 


Doplňující informace:

ID inzerátu ESO: 4358451
Inzerát vydán: 11.09.2025
Inzerát aktualizován: 13.11.2025
ID zakázky v RK: 25314
Budova je z: Cihla
Stav: Dobrý
Umístění: Dobrý
Užitná plocha: 35 m2
Podlahová plocha: 35 m2
Energetická náročnost budovy:
G - Mimořádně nehospodárná
 
 

 

Bleskový dotaz makléři

K pronájmu, Obchody, Opava, Holasická

Text dotazu *
Váš telefon *
Váš e-mail
Zobrazit kontaktní informace
Odeslat
 
 
 
 

Ve schránce je 0 inzerátů.

zobrazit celou schránku
 
 

Nalezli jsme dalších 6 nemovitostí v podobné ceně.

 
 
reklama