K pronájmu, Obchody, 202 m2, Praha 6, Žukovského

 
 
 
Lokalita:
Praha 6, Žukovského
 
 
Cena:
101 000 Kč / za nemovitost
 
plus kauce plus provize
 
uvedená cena je: bez provize Nabídněte prodejci Vaši cenu 
 
 

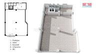
Nabízíme k pronájmu komerční prostory o celkové užitné ploše 202 m², ideální pro obchod či poskytování služeb. Nemovitost se nachází v oblíbené části Prahy 6 - Ruzyně, přímo na sídlišti Dědina v budově Delta B. Prostory jsou situovány v přízemí, díky čemuž disponují velkými výlohami. Čistá prodejní plocha je nyní 170m2 plus sklad o velikosti 22m2. K prostorům dále náleží kancelář a sociální zázemí. Prostory nabízí nezpočet možností pro podnikání - případná rekolaudace a stavební úpravy jsou možné po domluvě, ale jsou plně hrazeny a organizovány budoucím zájemcem. Po domluvě je možné pronajmout i parkovací stání v suterénu. Ve 2. a 3. nadzemním podlaží budovy jsou převážně ordinace zdravotních lékařů, ve 4. a 5. patře jsou kanceláře, v okolí sídliště Dědina. MHD včetně tramvajové linky cca 3min chůze, parkování v okolí, parkovací dům ve výstavbě v dochozí vzdálenosti. Nepropásněte tuto příležitost a domluvte si prohlídku ještě dnes!

 
zobrazit více
 
 
 


Doplňující informace:

ID inzerátu ESO: 4343345
Inzerát vydán: 01.07.2025
Inzerát aktualizován: 30.08.2025
ID zakázky v RK: 900912696
Budova je z: Cihla
Stav: Velmi dobrý
Vlastnictví: Osobní
Umístění: Velmi dobrý
Nebytová plocha: 202 m2
Užitná plocha: 202 m2
Energetická náročnost budovy:
G - Mimořádně nehospodárná
 
 

 
 
 

Bleskový dotaz makléři

K pronájmu, Obchody, 202 m2, Praha 6, Žukovského

Text dotazu *
Váš telefon *
Váš e-mail
Zobrazit kontaktní informace
Odeslat
 
 
 
 

Ve schránce je 0 inzerátů.

zobrazit celou schránku
 
 

Nalezli jsme dalších 1 nemovitostí v podobné ceně.

 
 
reklama