K pronájmu, Obchody, 32 m2, Liberec, Karoliny Světlé

 
 
 
Lokalita:
Liberec, Karoliny Světlé
 
 
Cena:
7 500 Kč / za nemovitost
 
Nájem 7500,-, služby 490,-, kauce 15000,-, provize 11000,-
 
uvedená cena je: včetně provize Nabídněte prodejci Vaši cenu 
 
 

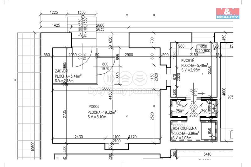
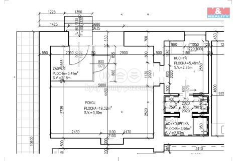
Nabízíme k pronájmu komerční prostor o užitné ploše 32 m², který se nachází v klidné části obce Liberec – Horní Růžodol. Prostor je umístěn v 1. nadzemním podlaží cihlové budovy po rekonstrukci a má samostatný vstup přímo z ulice. Tento prostor je ideální pro obchodní účely nebo kancelář. Skládá se ze dvou místností, které lze využít podle potřeb nájemce. Stav nemovitosti je velmi dobrý, připravený k okamžitému využití. Parkování je možné přímo na ulici, a to v blízkosti objektu. Díky výhodné lokalitě je prostor skvěle dostupný, s tramvajovou zastávkou pouhých 5 minut chůze a rychlým spojením do centra města. Nájem 7.500,-/měs + služby 490,-/měs + kauce 15.000,- + provize 11.000,-; elektřinu si nájemník hlásí na sebe. Tento prostor představuje skvělé místo pro vaši podnikatelskou činnost. Neváhejte nás kontaktovat a domluvit si prohlídku!

 
zobrazit více
 
 
 


Doplňující informace:

ID inzerátu ESO: 4349157
Inzerát vydán: 31.07.2025
Inzerát aktualizován: 05.08.2025
ID zakázky v RK: 900915758
Budova je z: Cihla
Stav: Dobrý
Vlastnictví: Osobní
Umístění: Dobrý
Nebytová plocha: 32 m2
Užitná plocha: 32 m2
Energetická náročnost budovy:
G - Mimořádně nehospodárná
 
 

 

Bleskový dotaz makléři

K pronájmu, Obchody, 32 m2, Liberec, Karoliny Světlé

Text dotazu *
Váš telefon *
Váš e-mail
Zobrazit kontaktní informace
Odeslat
 
 
 
 

Ve schránce je 0 inzerátů.

zobrazit celou schránku
 
 

Nalezli jsme dalších 6 nemovitostí v podobné ceně.

 
 
reklama