K pronájmu, Obchody, 394 m2, Kolín, Husovo náměstí

 
 
 
Lokalita:
Kolín, Husovo náměstí
 
 
Cena:
Info o ceně u RK
 
Cena dle domluvy.
 
uvedená cena je: včetně provize Nabídněte prodejci Vaši cenu 
 
 

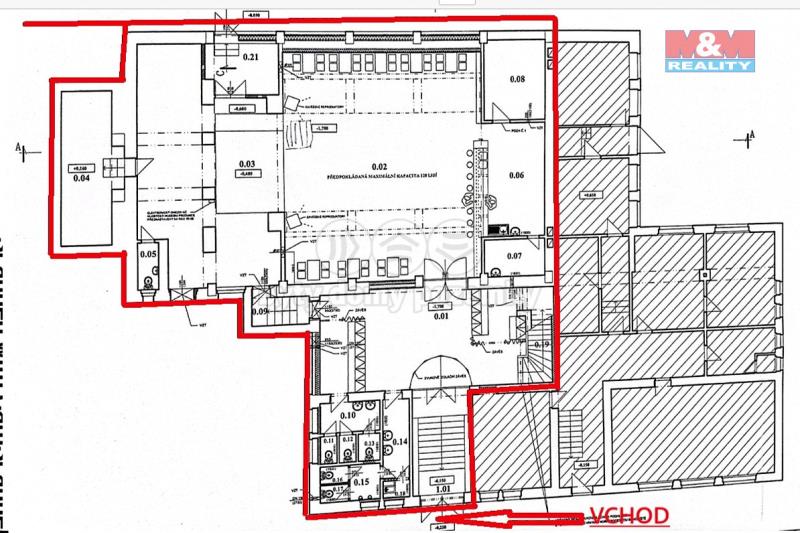
Hledáte prostor s atmosférou a historií? Nabízíme k pronájmu víceúčelový prostor o výměře 394 m², situovaný v suterénu fary Církve československé husitské, v klidné části městského parku a přitom jen pár minut od centra Kolína. Dispozičně prostor zahrnuje vstupní předsálí, hlavní sál s pódiem a balkonem, kuchyňku, skladovací prostory a kompletní sociální zázemí (dámské, pánské i zaměstnanecké WC). Vytápění i vzduchotechnika jsou řešeny samostatně, energie jsou měřeny odděleně. V minulosti zde fungovalo divadlo, kinosál, taneční škola či architektonický ateliér. Prostor je ideální pro kulturní, vzdělávací nebo komunitní využití – například přednášky, workshopy, kurzy, coworking nebo klidné provozovny. Diskotéky, herny ani hlučné akce nejsou povoleny – důraz je kladen na smysluplné a nerušící využití. Zaujala Vás tato nabídka? Ozvěte se nám a domluvte si prohlídku. Cena dle domluvy.

 
zobrazit více
 
 
 


Doplňující informace:

ID inzerátu ESO: 4343348
Inzerát vydán: 01.07.2025
Inzerát aktualizován: 30.08.2025
ID zakázky v RK: 900912793
Budova je z: Cihla
Stav: Dobrý
Vlastnictví: Ostatní
Umístění: Dobrý
Nebytová plocha: 394 m2
Užitná plocha: 394 m2
Energetická náročnost budovy:
G - Mimořádně nehospodárná
 
 

 

Bleskový dotaz makléři

K pronájmu, Obchody, 394 m2, Kolín, Husovo náměstí

Text dotazu *
Váš telefon *
Váš e-mail
Zobrazit kontaktní informace
Odeslat
 
 
 
 

Ve schránce je 0 inzerátů.

zobrazit celou schránku
 
 
reklama