K pronájmu, Restaurace, 99 m2, Malé Přítočno, Kladenská

 
 
 
Lokalita:
Malé Přítočno, Kladenská
 
 
Cena:
12 000 Kč / za nemovitost
 
 
uvedená cena je: včetně provize Nabídněte prodejci Vaši cenu 
 
 

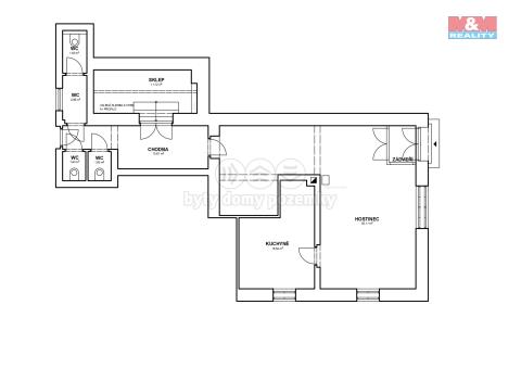
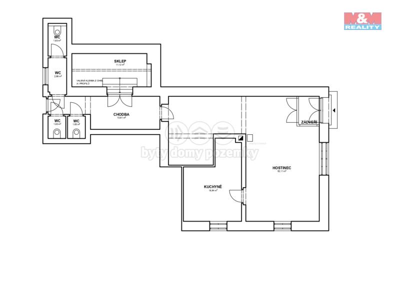
Nabízíme k pronájmu jedinečný prostor bývalého hostince o podlahové ploše 99 m², ideálně situovaný v centru obce Malé Přítočno. Nemovitost se nachází v přízemí cihlové budovy a nabízí 3 místnosti - hlavní místnost, kuchyň, útulný sklípek s posezením, dále zde máte toalety zvlášť pro muže a ženy. Díky již existující kuchyni je prostor ideální pro realizaci projektů jako výroba a rozvoz krabičkových jídel či restaurace s možností rozvozu a místním posezením. Vzhledem ke stavu objektu je pronájem k jednání dle rozsahu případné rekonstrukce, kterou si můžete přizpůsobit svým potřebám. Možnost využít venkovní prostor k příjemnému posezení a také bezproblémového zaparkování vozidla. Nepropásněte tuto příležitost rozvíjet své podnikání na strategickém místě - autem jste v Kladně za 3 minuty, za stejnou dobu jste i na dálnici D6. Více info v RK.

 
zobrazit více
 
 
 


Doplňující informace:

ID inzerátu ESO: 4352850
Inzerát vydán: 20.08.2025
ID zakázky v RK: 900917453
Budova je z: Cihla
Stav: Dobrý
Vlastnictví: Osobní
Umístění: Dobrý
Nebytová plocha: 99 m2
Plocha pozemku: 99 m2
Užitná plocha: 99 m2
Energetická náročnost budovy:
G - Mimořádně nehospodárná
 
 

 

Bleskový dotaz makléři

K pronájmu, Restaurace, 99 m2, Malé Přítočno, Kladenská

Text dotazu *
Váš telefon *
Váš e-mail
Zobrazit kontaktní informace
Odeslat
 
 
 
 

Ve schránce je 0 inzerátů.

zobrazit celou schránku
 
 

Nalezli jsme dalších 11 nemovitostí v podobné ceně.

 
 
reklama