K pronájmu, Sklady, Adamov

 
 
 
Lokalita:
Adamov
 
 
Cena:
20 000 Kč / za nemovitost
 
cena k jednání
 
uvedená cena je: k jednání Nabídněte prodejci Vaši cenu 
 
 

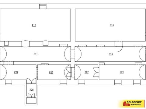
Nabízíme Vám k pronájmu rozsáhlé sklepní prostory o přibližné skladové ploše 162 m2, umístěné pod bývalou administrativní budovou Adastu Adamov. Sklepení sestává celkem ze šesti sklepů o výměrách od 8,58 do 55,30 m² (viz příloha půdorys) - dva sklepy jsou využitelné samostatně, další sklepy jsou průchozí, využitelné po dvojicích. Všechny sklepy jsou přístupné z chodby procházející středem objektu. Jeden větší sklep je vybaven toaletou s umývadlem (tento sklep byl využíván k únikovým hrám). Součástí prostor k pronájmu je funkční nákladní výtah s nosností 250 kg. Elektřina o napětí 220 V v rekonstruovaných rozvodech s vlastním měřením spotřeby je přivedena do všech místností. Sklepení je využitelné např. jako prostory k uskladnění ovoce, zeleniny, popř. vína, jako pěstírna žampiónů, dílny apod. Majitel preferuje pronájem prostor jako celku, je však přístupný i pronájmu jednotlivých sklepů. Nájemné (k jednání) je 20 000,- Kč/měsíc/celek. Vratná kauce je 20 000 Kč. Průkaz energetické náročnosti budovy nebyl dodán a z toho důvodu uvádíme třídu G. Pro více informací nebo domluvení termínu prohlídky neváhejte kontaktovat realitního makléře.

 
zobrazit více
 
 
 


Doplňující informace:

ID inzerátu ESO: 4299981
Inzerát vydán: 16.12.2024
Inzerát aktualizován: 25.03.2026
Budova je z: Smíšená
Stav: Dobrý
Umístění: Dobrý
Užitná plocha: 162 m2
Energetická náročnost budovy:
G - Mimořádně nehospodárná
 
 

 

Bleskový dotaz makléři

K pronájmu, Sklady, Adamov

Text dotazu *
Váš telefon *
Váš e-mail
Zobrazit kontaktní informace
Odeslat
 
 
 
 

Ve schránce je 0 inzerátů.

zobrazit celou schránku
 
 

Nalezli jsme dalších 3 nemovitostí v podobné ceně.

 
 
reklama