K pronájmu, Sklady, Plzeň

 
 
 
Lokalita:
Plzeň
 
 
Cena:
Info o ceně u RK
 
info v RK, elektřina na nájemce, + provize RK
 
uvedená cena je: bez provize Nabídněte prodejci Vaši cenu 
 
 

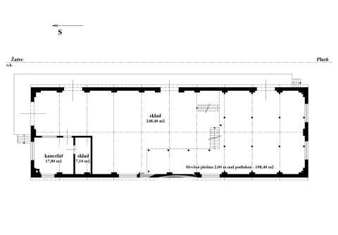
Nabízíme k pronájmu zděnou budovu blízko Jateční ulice v Plzni. Budova prošla částečnou rekonstrukcí, nová elektrika s velkým množstvím zásuvek, nové osvětlení, nová lepenka na střeše, vymalování, apod. Nabízí zděnou kancelář ( 17,8 m² ), sklad ( 7,1 m² ) a kromě skladové plochy na betonové podlaze ( 248,4 m² ) je zde možné jí navýšit v 1,5 m výšky o poschodí až 108,4 m² velké . Výška prostoru je 3,8 m. Vstupní vrata z rampy mají rozměry : výška 2,4 m a šířka 2,6 m . podél budovy s rampou je železniční vlečka. Kanalizace a voda v blízkosti objektu. Vhodné pro sklad nebo lehkou výrobu. Volné ihned, volejte makléři nebo napište na odpovědní formulář u inzerce.

 
zobrazit více
 
 
 


Doplňující informace:

ID inzerátu ESO: 4386889
Inzerát vydán: 26.02.2026
Inzerát aktualizován: 22.04.2026
Budova je z: Cihla
Stav: Dobrý
Umístění: Dobrý
Užitná plocha: 301 m2
Podlahová plocha: 381 m2
Plocha pozemku: 301 m2
Zastavěná plocha: 301 m2
Energetická náročnost budovy:
G - Mimořádně nehospodárná
 
 

 

Bleskový dotaz makléři

K pronájmu, Sklady, Plzeň

Text dotazu *
Váš telefon *
Váš e-mail
Zobrazit kontaktní informace
Odeslat
 
 
 
 

Ve schránce je 0 inzerátů.

zobrazit celou schránku
 
 

Nalezli jsme dalších 12 nemovitostí v podobné ceně.

 
 
reklama