K pronájmu, Sklady, Rožnov pod Radhoštěm, Pivovarská

 
 
 
exkluzivně
 
Lokalita:
Rožnov pod Radhoštěm, Pivovarská
 
 
Cena:
25 000 Kč / za nemovitost
 
 
Nabídněte prodejci Vaši cenu 
 
 

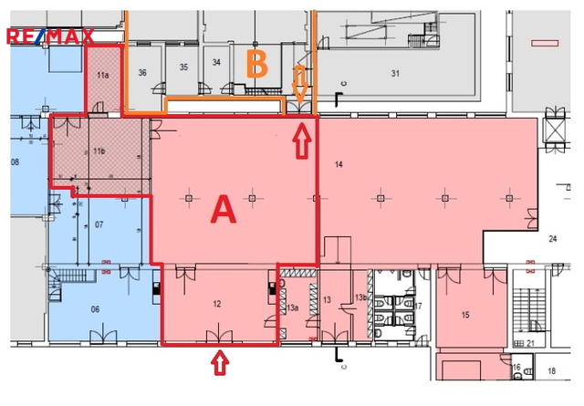
Nabízíme k pronájmu prostory pro obchod/prodejnu/skladování/lehkou výrobu o výměře ca. 295m2 (prostor znázorněn "A") ca. 300m od centra Rožnova pod Radhoštěm na ulici Pivovarská. Prostory lze v případě zájmu rozšířit od dalších 222m2 (prostor znázorněn "B"). Budova i okolí je po celkové revitalizaci (...zatepleno, vlastní kotelna, vlastní trafostanice,...), areál oplocen, hlídán pomocí CCTV atd. V případě dotazů popř. zájmu o prohlídku mne prosím neváhejte kontaktovat. Prostor "A" volný od 1.7.2026 (po dohodě možno i dříve) Cena by měla být za prostor A (včetně jednoho vyhrazeného parkovacího místa) Nájemné 35000Kč + DPH Služby 9000 + DPH záloha topení (vychází bez doplatku) paušální platba vodné-stočné paušální platba elektřina společných prostor (osoušeče rukou, venkovní osvětlení, kamerový systém, ohřev TUV…) paušální platba úklid venkovních prostor a společných prostor (včetně úklidových a hygienických prostředků) paušální platba internet Prostor "B" k dispozici IHNED Cena by měla být za prostor B (včetně dvou vyhrazených parkovacích míst) Nájemné 25000 + DPH Služby 5000 + DPH záloha topení (vychází bez doplatku) záloha platba vodné-stočné (vlastní vodoměr a ohřev TUV) paušální platba elektřina společných prostor (venkovní osvětlení, kamerový systém…) paušální platba úklid venkovních prostor paušální platba internet Cena za celek „A“ + „B“ dohodou. JItka Fröhlichová, Vaše realitní makléřka pro tuto oblast.

 
zobrazit více
 
 
 


Doplňující informace:

ID inzerátu ESO: 4377391
Inzerát vydán: 27.12.2025
Inzerát aktualizován: 08.01.2026
ID zakázky v RK: 429537
Budova je z: Cihla
Stav: Velmi dobrý
Umístění: Velmi dobrý
Užitná plocha: 295 m2
Energetická náročnost budovy:
C - Úsporná
 
 

 
 
 

Bleskový dotaz makléři

K pronájmu, Sklady, Rožnov pod Radhoštěm, Pivovarská

Text dotazu *
Váš telefon *
Váš e-mail
Zobrazit kontaktní informace
Odeslat
 
 
 
 

Ve schránce je 0 inzerátů.

zobrazit celou schránku
 
 

Nalezli jsme dalších 9 nemovitostí v podobné ceně.

 
 
reklama