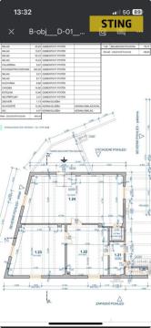
Nabízíme možnost pronájmu skladovacích prostor ve Velké Bystřici u Olomouce. Lze využít jako sklad, menší výrobní prostory ap. Nabízené prostory lze po dohodě s majitelem upravit dle požadavků a potřeb zájemce.
Tel: 800 103 010, 602 741 829, 602 741 829 klientsky.servis@rksting.cz
1. máje 540, 73961 Třinec www.rksting.cz
Ve schránce je 0 inzerátů.