K pronájmu, Výroba, 378 m2, Nepomuk, Dvorec

 
 
 
Lokalita:
Nepomuk, Dvorec
 
 
Cena:
32 000 Kč / za nemovitost
 
 
uvedená cena je: včetně provize Nabídněte prodejci Vaši cenu 
 
 

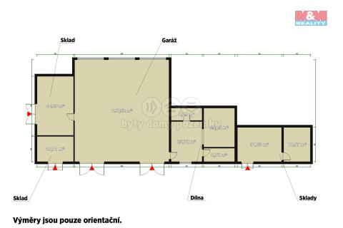
Pronájem dílny pro opravy autobusů i kamionů – ideální zázemí pro vaši autodopravu nebo servis. Nabízíme k pronájmu prostornou dílnu určenou pro opravy autobusů. Objekt se nachází na dobře dostupném místě s výborným napojením na hlavní dopravní tahy ve Dvorci u Nepomuka. Specifikace dílny: Celková plocha s přilehlými prostory cca 378 m² Plocha hlavní dílny 197m2 viz. půdorys Vysoké stropy a 2x široká vjezdová vrata pro bezproblémový vjezd vozidel 2x montážní jáma Jeřáb na 2t, elektřina 400 V Vytápění olejovými kamny Kancelářské prostory a sociální zázemí (šatna, toalety, sprcha) k dispozici po domluvě v areálu Možnost parkování pro vozidla zaměstnanců i zákazníků Výborná dostupnost, oplocený areál přístupný i pro nákladní dopravu Vhodné pro servisní firmu, autodopravce nebo technické zázemí společnosti Možnost dlouhodobého pronájmu Volné ihned V případě zájmu o prohlídku nebo více informací nás kontaktujte

 
zobrazit více
 
 
 


Doplňující informace:

ID inzerátu ESO: 4350317
Inzerát vydán: 05.08.2025
Inzerát aktualizován: 01.09.2025
ID zakázky v RK: 900914714
Budova je z: Cihla
Stav: Dobrý
Vlastnictví: Osobní
Umístění: Dobrý
Nebytová plocha: 378 m2
Plocha pozemku: 535 m2
Parkování: Garáž
Užitná plocha: 378 m2
Energetická náročnost budovy:
G - Mimořádně nehospodárná
 
 

 

Bleskový dotaz makléři

K pronájmu, Výroba, 378 m2, Nepomuk, Dvorec

Text dotazu *
Váš telefon *
Váš e-mail
Zobrazit kontaktní informace
Odeslat
 
 
 
 

Ve schránce je 0 inzerátů.

zobrazit celou schránku
 
 

Nalezli jsme dalších 2 nemovitostí v podobné ceně.

 
 
reklama