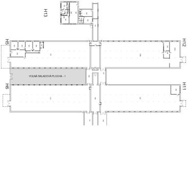
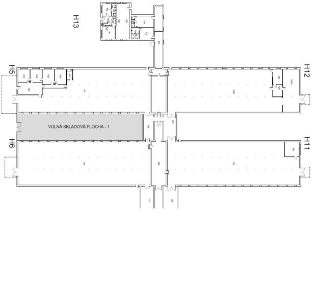
Pronájem zpevněné oplocené plochy 382 m2. Pozemek se nachází v rámci logistického areálu s ostrahou 24/7. Příjezd kamionu možný. Možnost pronájmu další skladové plochy, kanceláře v tomto areálu. U této nabídky neplatíte provizi.
Tel: 603 244 902 stanislav.sestak@centrum.cz
Kolínská 1722/16, 13000 Praha 3 www.aqsreality.cz
Ve schránce je 0 inzerátů.
K pronájmu, Pozemky, 540 m2 Ve žlíbku
K pronájmu, Pozemky, 382 m2 Ve žlíbku
K pronájmu, pozemky - stavební / komerční, 382 m2 Ve žlíbku