K prodeji, Byt 1+kk, 52 m2, Brno, Blažovická

 
 
 
Lokalita:
Brno, Blažovická
 
 
Cena:
5 900 000 Kč / za nemovitost
 
 
Nabídněte prodejci Vaši cenu 
 
 

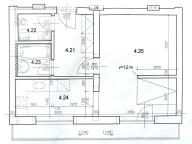
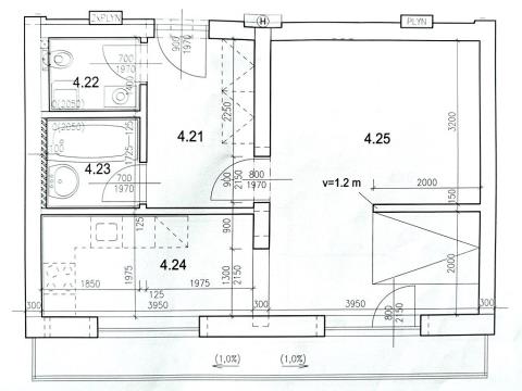
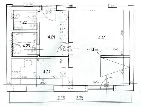
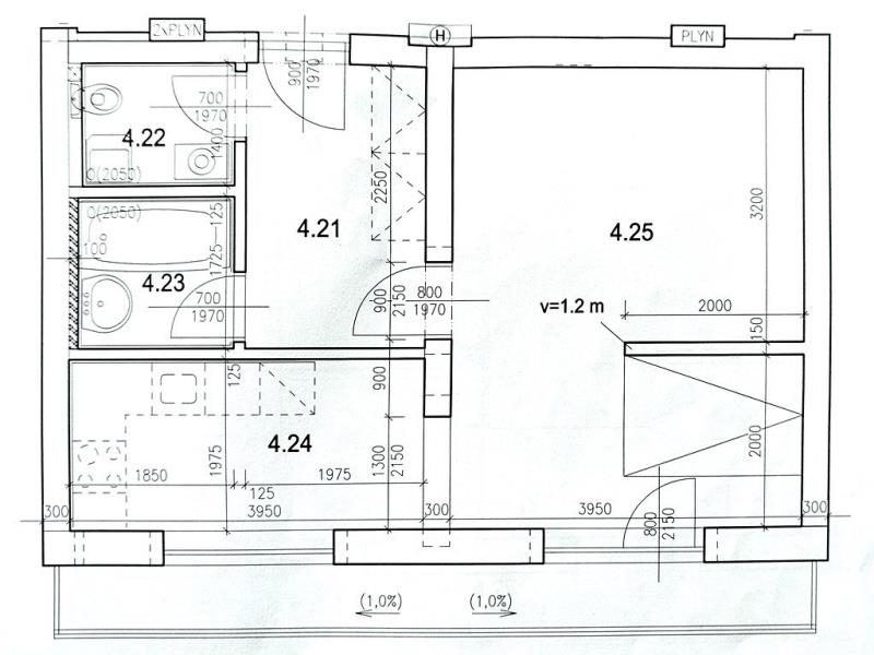
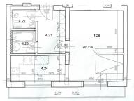
Prodej cihlového družstevního bytu o velikosti 1+kk v Brně - Slatině na ulici Blažovická. Byt je z roku 2008, nachází ve 3. patře (poslední patro, bez výtahu) o celkové výměře 52,2 m2, podlahová plocha 40,7 m2. Dispozice: předsíň 6,4 m2, koupelna 3 m2, WC 2,3 m2, obývací pokoj s kuchyňským koutem 28,9 m2, terasa s markýzou 6,3 m2, komora na patře (sklep) 5,3 m2. Vybavení: bezpečnostní vchodové dveře, plastová okna s bambusovými žaluziemi, vytápění – vlastní plynový kotel a bojler na ohřev teplé vody, v celém bytě plovoucí podlaha, pouze v koupelně a na WC dlažba, osvětlení. Kuchyně – kuch.linka, digestoř, elektrický sporák i trouba, lednice s mrazákem, stůl, 2x židle, obývací pokoj – poličky, rozkládací sedačka, komoda, příčka oddělující spací kout, předsíň – bezpečnostní dveře, trojdílná šatní skříň, úložný prostor nad skříní, botník, koupelna – umyvadlo, vana, skříňka, zrcadlo, otopný žebřík, WC – plynový kotel BAXI, bojler na ohřev vody, pračka, poličky, komora (sklep) – regály na míru. Veškeré vybavení je součástí kupní ceny. V domě společná kočárkárna a TV anténa. Bezplatný převod bytu do osobního vlastnictví je možný v roce 2028. Měsíční poplatky družstvu 1.098,-Kč (z toho fond oprav 322,-Kč) + záloha na elektřinu 800,-Kč, plyn 1.000,-Kč, internet Vodafone 600,-Kč. Celkové měsíční náklady jsou velmi nízké 3.500,-Kč. Byt je velice dobře situovaný: výborná dostupnost CT parku, letiště, dálnice D1, 13 min trolejbusem na hlavní nádraží v Brně. Ideální nejen k bydlení, ale i na investici (v současné době je byt pronajatý za částku 14.000,-Kč/měsíc + energie a služby).

 
zobrazit více
 
 
 


Doplňující informace:

ID inzerátu ESO: 4318961
Inzerát vydán: 14.03.2025
Inzerát aktualizován: 17.02.2026
Budova je z: Cihla
Stav: Velmi dobrý
Vlastnictví: Družstevní
Umístění: Velmi dobrý
Obytná plocha: 52 m2
Terasa: 6m2
Užitná plocha: 41 m2
Podlahová plocha: 52 m2
Plocha sklepa: 5 m2
Energetická náročnost budovy:
C - Úsporná
 
 

 

Bleskový dotaz makléři

K prodeji, Byt 1+kk, 52 m2, Brno, Blažovická

Text dotazu *
Váš telefon *
Váš e-mail
Zobrazit kontaktní informace
Odeslat
 
 
 
 

Ve schránce je 0 inzerátů.

zobrazit celou schránku
 
 

Nalezli jsme dalších 86 nemovitostí v podobné ceně.

 
 
reklama