K prodeji, Byt 2+1, 54 m2, Ostrava, Dr. Martínka

 
 
nový
 
Lokalita:
Ostrava, Dr. Martínka
 
 
Cena:
3 150 000 Kč / za nemovitost
 
včetně provize
 
uvedená cena je: včetně provize Nabídněte prodejci Vaši cenu 
 
 

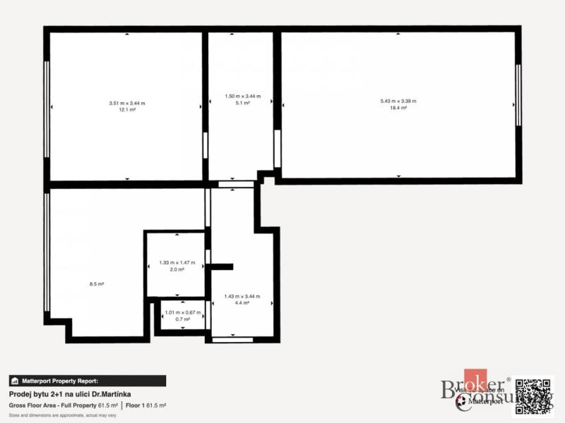
Nabízíme k prodeji byt v osobním vlastnictví o dispozici 2+1 a podlahové ploše 54 m², který se nachází ve 3. nadzemním podlaží bytového domu s výtahem na ulici Dr. Martínka 47 v Ostravě. Byt je v původním, udržovaném stavu, což dává novému majiteli ideální příležitost upravit si bydlení podle vlastních představ. Velkou výhodou je praktické dispoziční řešení – oba pokoje jsou samostatné a neprůchozí, přístupné z předsíně. Dispozice tak nabízí dostatek soukromí a je vhodná jak pro vlastní bydlení, tak i jako obchodní příležitost. Byt je orientovaný na sever a jih, díky čemuž je příjemně světlý během celého dne. Dům prošel rekonstrukcí a zateplením, což přispívá k vyššímu komfortu bydlení a lepší energetické efektivitě. Samozřejmostí je výtah a sklepní kóje, která poskytuje další úložný prostor. Lokalita: Jedná se o vyhledávanou lokalitu s kompletní občanskou vybaveností. V docházkové vzdálenosti najdete MHD, obchody, školy, školky, lékaře i další služby. Parkování je možné přímo u domu. Další informace: • ústřední vytápění • měsíční náklady: 1 650 Kč fond oprav + cca 4 050 Kč služby (teplo, voda, výtah, apod.) • byt bude k dispozici k předání na konci května Byt je dobře financovatelný hypotečním úvěrem, se kterým Vám rádi pomůžeme. Pro lepší představu o dispozici doporučujeme projít si virtuální prohlídku, která je součástí prezentace.

 
zobrazit více
 
 
 


Doplňující informace:

ID inzerátu ESO: 4390893
Inzerát vydán: 13.03.2026
Inzerát aktualizován: 15.03.2026
Budova je z: Panel
Stav: Velmi dobrý
Vlastnictví: Osobní
Umístění: Velmi dobrý
Obytná plocha: 54 m2
Užitná plocha: 54 m2
Plocha sklepa: 4 m2
Energetická náročnost budovy:
G - Mimořádně nehospodárná
 
 

 

Bleskový dotaz makléři

K prodeji, Byt 2+1, 54 m2, Ostrava, Dr. Martínka

Text dotazu *
Váš telefon *
Váš e-mail
Zobrazit kontaktní informace
Odeslat
 
 
 
 

Ve schránce je 0 inzerátů.

zobrazit celou schránku
 
 

Nalezli jsme dalších 128 nemovitostí v podobné ceně.

 
 
reklama