K prodeji, Byt 2+1, 55 m2, Brno, Slavíčkova

 
 
nový
 
Lokalita:
Brno, Slavíčkova
 
 
Cena:
6 390 000 Kč / za nemovitost
 
Neplatíte provizi
 
Nabídněte prodejci Vaši cenu 
 
 

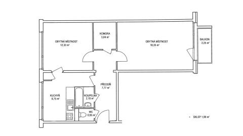
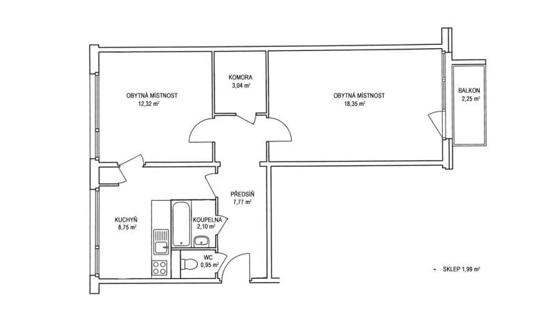
Byty v Lesné si drží hodnotu – a tenhle může být přesně takový, jaký si ho vytvoříte. Nabízíme k prodeji byt o dispozici 2+1 ve 3. nadzemním podlaží revitalizovaného panelového domu s výtahem. Dispozice bytu je prakticky řešená – tvoří ji vstupní chodba, samostatná kuchyně, prostorný obývací pokoj, ložnice, praktická komora, koupelna, samostatné WC a balkon orientovaný na jih, který zajišťuje dostatek denního světla po celý den. Velkou předností je samotná lokalita – byt se nachází v oblíbené městské části Brno–Lesná, v bezprostřední blízkosti přírodní lokality Čertova rokle. Ta nabízí ideální prostor pro relax, procházky i sportovní aktivity. Zároveň oceníte kompletní občanskou vybavenost v docházkové vzdálenosti – školy, školky, obchody, služby i zastávky MHD s rychlou dostupností do centra města. Původní stav bytu dává novému majiteli volnost upravit si interiér podle vlastního stylu a potřeb. Nemovitost není zatížena úvěrem, což umožňuje hladký a rychlý průběh převodu. Pro více informací nebo domluvení prohlídky kontaktujte makléře. Dispozice: velikost: 2+1 celková výměra 55 m² (+ 4m² balkon) výměry: obývací pokoj 18,3 m², ložnice 12,3 m², kuchyň 8,7 m², koupelna 2,1 m², předsíň 7,7 m², spížka v kuchyni 0,3 m² , WC 0,9 m², komora 3,0 m² balkon cca 4,0 m² sklep má výměru 2 m² konstrukce: panelová; jádro: umakartové; vlastnictví: osobní; podlaží: 3/8; orientace: S, J; výtah: ano; náklady měsíčně 3.194 Kč + plyn a el.; Uvolnění: ihned

 
zobrazit více
 
 
 


Doplňující informace:

ID inzerátu ESO: 4393428
Inzerát vydán: 31.03.2026
Budova je z: Panel
Stav: Velmi dobrý
Vlastnictví: Osobní
Umístění: Velmi dobrý
Obytná plocha: 55 m2
Lodžie: 4m2
Užitná plocha: 55 m2
Energetická náročnost budovy:
B - Velmi úsporná
 
 

 

Bleskový dotaz makléři

K prodeji, Byt 2+1, 55 m2, Brno, Slavíčkova

Text dotazu *
Váš telefon *
Váš e-mail
Zobrazit kontaktní informace
Odeslat
 
 
 
 

Ve schránce je 0 inzerátů.

zobrazit celou schránku
 
 

Nalezli jsme dalších 92 nemovitostí v podobné ceně.

 
 
reklama