K prodeji, Novostavba: Byt 2+kk, 42 m2

 
 
 
exkluzivně
 
Lokalita:
 
 
Cena:
2 498 000 Kč / za nemovitost
 
Parkovací stání lze koupit za 150 000, Kč
 
uvedená cena je: včetně provize Nabídněte prodejci Vaši cenu 
 
 

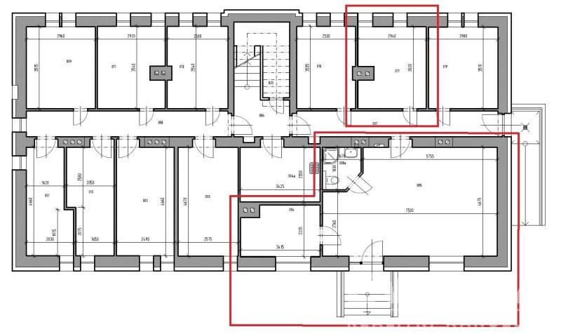
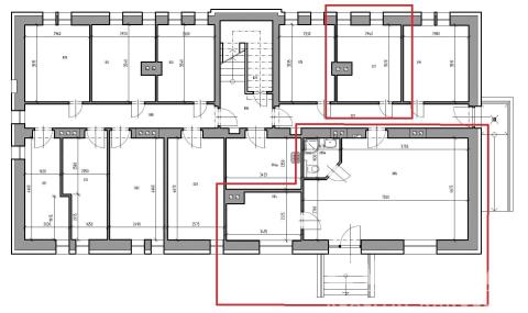
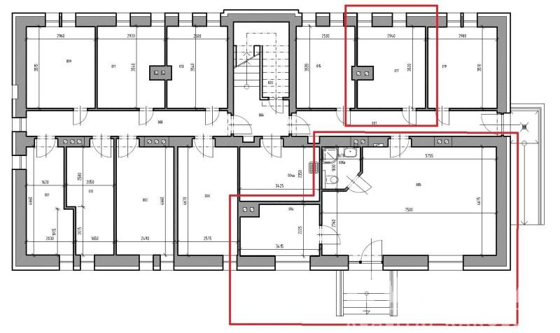
Prodej ateliéru 2+kk v projektu Byty Dolní Branná. Hledáte cenově dostupný ateliér v klidné lokalitě, ale s výbornou dostupností do města? Pak pro vás máme skvělou nabídku prostoru v Dolní Branné v podhůří Krkonoš, pouhých 5 minut od Vrchlabí! Nabízíme k prodeji moderní byt o dispozici 42 m² se samostatným vstupem, který je součástí nově kompletně zrekonstruovaného třípatrového cihlového domu s energetickou náročností třídy C (PENB). Bytový projekt klade důraz na kvalitní materiály a funkční provedení interiéru. Součástí bytu je: • Velký obytný prostor s místem na malou kuchyňskou linku • Malý pokoj • Koupelna s moderním vybavením • Prostorný sklep k uskladnění sezónních věcí nebo vybudování dílny • *Vyhrazené parkovací stání přímo u domu • Možnost užívání zahrady Skvělá lokalita pro aktivní život Dolní Branná je ideální pro rodiny i jednotlivce hledající klidné bydlení v blízkosti přírody. Najdete zde mateřskou a základní školu, obchody, poštu i zastávku autobusu a vlaku. Vrchlabí a Jilemnice pak nabízejí širokou občanskou vybavenost včetně zdravotnických služeb, obchodů a restaurací. Okolí nabídne nepřeberné možnosti sportovního vyžití turistiku, cyklistiku, fotbal a zimní sporty. Dokončení a bonusy • Plánovaná kolaudace: prosinec 2025 Nenechte si ujít tuto jedinečnou příležitost. Kontaktujte nás pro bližší informace.

 
zobrazit více
 
 
 


Doplňující informace:

ID inzerátu ESO: 4368856
Inzerát vydán: 10.11.2025
Inzerát aktualizován: 27.01.2026
ID zakázky v RK: 7290830
Budova je z: Cihla
Stav: Nerozhoduje
Vlastnictví: Osobní
Umístění: Nerozhoduje
Obytná plocha: 42 m2
Plyn: Zaveden
Voda: Vodovod
Vytápění: Lokální plynové
Parkování: Venkovní stání
Užitná plocha: 42 m2
Podlahová plocha: 42 m2
Plocha sklepa: 10 m2
Energetická náročnost budovy:
C - Úsporná
 
 

 

Bleskový dotaz makléři

K prodeji, Novostavba: Byt 2+kk, 42 m2

Text dotazu *
Váš telefon *
Váš e-mail
Zobrazit kontaktní informace
Odeslat
 
 
 
 

Ve schránce je 0 inzerátů.

zobrazit celou schránku
 
 

Nalezli jsme dalších 1050 nemovitostí v podobné ceně.

 
 
reklama