K prodeji, Byt 2+kk, 45 m2, Praha 5, Praha 13, Brdičkova

 
 
 
Lokalita:
Praha 5, Praha 13, Brdičkova
 
 
Cena:
6 390 000 Kč / za nemovitost
 
 
uvedená cena je: včetně provize, včetně právního servisu Nabídněte prodejci Vaši cenu 
 
 

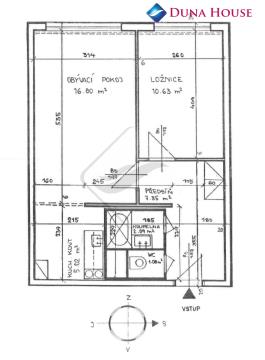
Nově nabízíme k prodeji praktický a útulný byt v osobním vlastnictví 2+kk o celkovém rozměru 45 m², který se nachází ve 4. patře v jedné z žádaných lokalit Prahy - Stodůlky. Byt je situován v domě s výtahem a nabízí pohodlné bydlení v oblasti s výbornou občanskou vybaveností. Je částečně vybavený a připraven k okamžitému nastěhování. Byt je v původním, udržovaném stavu, což vám jako novým majitelům dává skvělou příležitost realizovat rekonstrukci přesně podle vašich představ. Umakartové jádro vám umožní snadnou rekonstrukci a úpravu dispozice, zejména ve střední části bytu. Pokoje jsou vzdušné a prostorné, podlahu pokrývá lino. Součástí bytu je kuchyňská linka, koupelna s vanou a praktická vestavěná skříň, která poskytuje dostatek úložného prostoru. Byt se nachází v klidné části Prahy, v lokalitě kolem Brdičkovy ulice, která je ideální pro rodiny i jednotlivce hledající rovnováhu mezi městským životem a pohodovým bydlením obklopeném zelení. Výhledy z bytu jsou příjemné díky okolní zeleni a upravenému vnitrobloku, který zároveň nabízí dětské hřiště, kde budou vaše děti v bezpečí a na dohled. Velkou výhodou je také výborná občanská vybavenost. V bezprostřední blízkosti domu se nachází dvě mateřské školy – MŠ U Bobříka a církevní MŠ Srdíčko – a jen minutu chůze je Fakultní základní škola u Pedagogické fakulty UK. Co se týče dopravní dostupnosti, metro Lužiny je vzdáleno pouhé 2 minuty chůze, což zajišťuje rychlé spojení s centrem města. Jen o minutu dál najdete obchodní centrum Lužiny s množstvím obchodů a služeb. Parkování je bezproblémové – kolem domu je k dispozici několik parkovacích míst. Díky své dispozici a lokalitě je byt zvláště vhodný pro pár nebo menší rodinu, která ocení kombinaci dostupnosti služeb, blízkosti přírody a potenciálu pro úpravu interiéru podle vlastních představ. Bude se vám zde velmi komfortně bydlet. Možnost financovat hypotečním úvěrem, který pro Vás rádi zařídíme - zdarma a za těch nejlepších podmínek na trhu. Pokud vás naše nabídka zaujala, neváhejte se ozvat a rádi vám poskytneme další informace.

 
zobrazit více
 
 
 


Doplňující informace:

ID inzerátu ESO: 4327577
Inzerát vydán: 26.04.2025
Inzerát aktualizován: 20.04.2026
ID zakázky v RK: LK148684
Budova je z: Panel
Stav: Velmi dobrý
Vlastnictví: Osobní
Umístění: Velmi dobrý
Obytná plocha: 45 m2
Užitná plocha: 45 m2
Podlahová plocha: 45 m2
Energetická náročnost budovy:
C - Úsporná
 
 

 

Bleskový dotaz makléři

K prodeji, Byt 2+kk, 45 m2, Praha 5, Praha 13, Brdičkova

Text dotazu *
Váš telefon *
Váš e-mail
Zobrazit kontaktní informace
Odeslat
 
 
 
 

Ve schránce je 0 inzerátů.

zobrazit celou schránku
 
 

Nalezli jsme dalších 42 nemovitostí v podobné ceně.

 
 
reklama