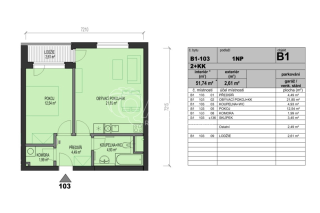
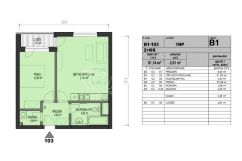
Byt 2+kk v domě z roku 2017 s lodžií, sklepem a vlastním venkovním parkovacím stáním. Nachází se ve vyvýšeném přízemí a je orientovaný na západ. Ulice před domem je slepá a slouží primárně pro rezidenty, provoz je tedy minimální a byt působí klidněji, než by člověk u Prahy čekal. Podlahová plocha je 51,7 m2. Dispozice je přesně taková, jaká má u 2+kk být – obývací pokoj s kuchyňským koutem, samostatná ložnice, koupelna s WC a komora přímo v bytě. Úložné prostory jsou řešené nejen sklepem, ale i komorou, která v podobných dispozicích často chybí. Stav bytu je výborný. Dům má výtah a energetická náročnost budovy je třídy B. Uhříněves je praktická lokalita pro každodenní život – v místě je kompletní vybavenost a zároveň rychlé napojení na dopravu. Vlakem jste na Hlavním nádraží zhruba za 17 minut a autem jste na D1 do několika minut. V okolí jsou také lesoparky a kousek i letní bazén. Pro více informací mě neváhejte kontaktovat. Budu se těšit na prohlídkách, Lukáš Petr
Tel: 732 546 330 lukas.petr@qara.cz
Šafaříkova 201/17, 120 00 Praha 2 www.qara.cz/
Ve schránce je 0 inzerátů.
K prodeji, Byt 2+kk, 39 m2 Práčská
K prodeji, Byt 3+kk, 75 m2 Františka Diviše
K prodeji, Novostavba: Byt 2+kk, 49 m2 Praha 15, Hornoměcholupská
K prodeji, Byt 3+1, 79 m2 Kurčatovova
K prodeji, Byt 3+kk, 107 m2 Průběžná
K prodeji, Byt >7+1, 94 m2 Kodaňská
K prodeji, Byt 2+kk, 49 m2 Holandská
K prodeji, Byt 2+kk, 40 m2 Počernická