K prodeji, Byt 3+1, 74 m2, Kladno, Italská

 
 
 
exkluzivně
nový
 
Lokalita:
Kladno, Italská
 
 
Cena:
6 190 000 Kč / za nemovitost
 
 
Nabídněte prodejci Vaši cenu 
 
 

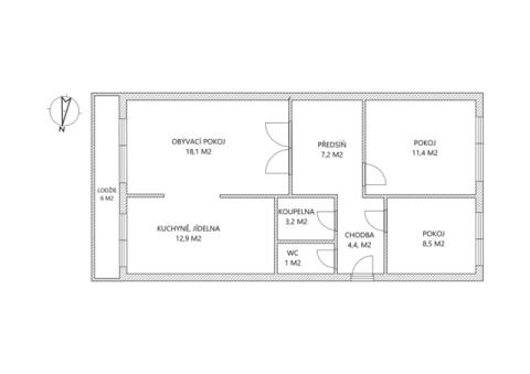
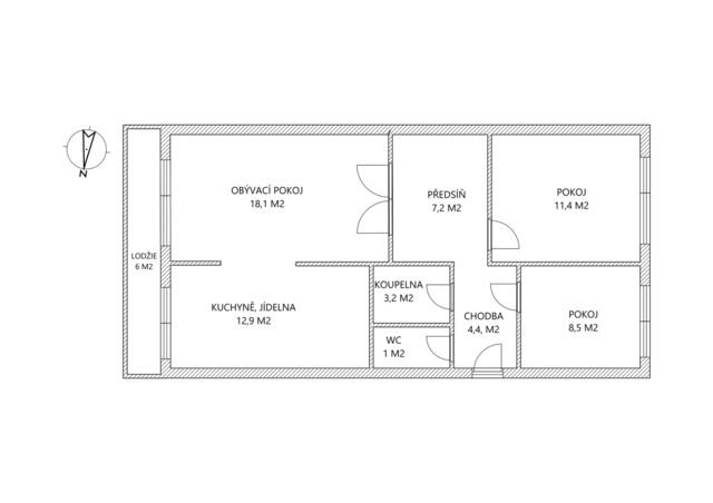
Nabízíme ke prodeji byt o dispozici 3+1 v Italské ulici v Kladně, o celkové ploše 74 m² včetně lodžie o velikosti 6 m² a komory 1 m2. Byt se nachází ve 4. patře panelového domu a nabízí praktické uspořádání i příjemnou orientaci. Lodžie je vedena přes obývací pokoj a kuchyni a je orientována na jihovýchod, což zajišťuje dostatek denního světla, zatímco dvě ložnice směřují na severozápad a poskytují klidné zázemí. V bytě jsou plastová okna se žaluziemi a v předsíni se nachází vestavěná skříň. Bytové jádro je nové, provedené ze sádrokartonu, včetně rozvodů, jinak je jednotka v původním stavu, což nabízí možnost rekonstrukce dle vlastních představ. Na podlahách jsou lino a koberce. Kuchyň je vybavena bílou lesklou kuchyňskou linkou. K bytu náleží praktická komora umístěná na patře a sklepní kóje. Dům prošel kompletní revitalizací, která zahrnovala nový výtah, výměnu všech rozvodů, nový vstup do domu, zateplení fasády i střechy a instalaci nových plastových oken, což přináší vyšší komfort i energetickou úsporu. Lokalita patří mezi velmi vyhledávané díky kompletní občanské vybavenosti a výborné dopravní dostupnosti. Přímo za domem se nachází Kaufland a McDonald’s, v okolí jsou dále školy, školky, Tesco, Lidl, zastávky MHD i cyklostezka. Výhodou je také rychlá dostupnost vlakového i autobusového spojení a pohodlné napojení směrem na Prahu. Byt je vhodný jak pro rodinné bydlení, tak jako investiční příležitost díky lokalitě, dispozici a stavu domu po revitalizaci

 
zobrazit více
 
 
 


Doplňující informace:

ID inzerátu ESO: 4388878
Inzerát vydán: 09.03.2026
Inzerát aktualizován: 12.03.2026
ID zakázky v RK: 19051
Budova je z: Panel
Stav: Velmi dobrý
Vlastnictví: Osobní
Umístění: Velmi dobrý
Obytná plocha: 74 m2
Lodžie: 6m2
Užitná plocha: 74 m2
Plocha sklepa: 2 m2
Zastavěná plocha: 1615 m2
Energetická náročnost budovy:
B - Velmi úsporná
 
 

 

Bleskový dotaz makléři

K prodeji, Byt 3+1, 74 m2, Kladno, Italská

Text dotazu *
Váš telefon *
Váš e-mail
Zobrazit kontaktní informace
Odeslat
 
 
 
 

Ve schránce je 0 inzerátů.

zobrazit celou schránku
 
 

Nalezli jsme dalších 56 nemovitostí v podobné ceně.

 
 
reklama