K prodeji, Byt 3+1, 77 m2, Ostrava, Hulvácká

 
 
 
exkluzivně
 
Lokalita:
Ostrava, Hulvácká
 
 
Cena:
3 390 000 Kč / za nemovitost
 
včetně právního servisu a služeb
 
Nabídněte prodejci Vaši cenu 
 
 

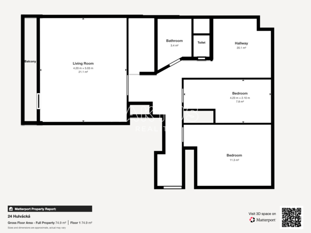
Naše společnost vám exkluzivně nabízí ke koupi družstevní byt 3+1 s proskleným balkonem, který se nachází v 1. patře revitalizovaného panelového domu v lokalitě Ostrava-Zábřeh. Byt prošel rekonstrukcí – zděné jádro, samostatná koupelna s vanou, závěsným WC, elektřina v mědi, voda v plastu, snížené stropy, nové omítky a plovoucí podlahy. Koupelna je v obkladech, s dlažbou, umyvadlovou skříňkou, šuplíky a prostorem pro další úložnou skříňku. V předsíni najdete vestavěnou skříň s velkým úložným prostorem. Kuchyně je rohová, vybavená elektrickou troubou, plynovou varnou deskou, digestoří a dostatkem pracovní plochy. Dispozice zahrnuje dva neprůchozí pokoje, obývací pokoj s výstupem na balkon a praktický kumbál s místem na pračku i sušičku. Dům je po kompletní revitalizaci – zateplení, nová okna, odpady, stoupačky, střecha, výtah. Výborná dopravní dostupnost a veškerá občanská vybavenost v dosahu – škola, školka, park. Měsíční náklady na bydlení činí 4 770 Kč ( zálohy za služby pro 1 osoby ), z toho fond oprav 1 905 Kč. Podíl v družstvu nelze převést do osobního vlastnictví. Máte zájem o prohlídku? Kontaktujte Oldu z Kaktusu pro více informací a domluvte si termín osobní návštěvy. V případě více zájemců může být cena předmětem další nabídky. Financování lze zajistit prostřednictvím našeho finančního specialisty. Uvedené výměry jsou orientační. V případě více zájemců bude nemovitost prodána nejlepší nabídce a majitel si vyhrazuje právo vybrat kupujícího na základě jím zvolených kritérií. Veškeré zveřejněné údaje obsažené v tomto inzerátu mají pouze informativní charakter a nejsou nabídkou ve smyslu § 1731 nebo § 1732 občanského zákoníku, ani se nejedná o veřejný příslib dle § 1733 občanského zákoníku.

 
zobrazit více
 
 
 


Doplňující informace:

ID inzerátu ESO: 4351832
Inzerát vydán: 13.08.2025
Inzerát aktualizován: 21.11.2025
ID zakázky v RK: 5685
Budova je z: Panel
Stav: Velmi dobrý
Vlastnictví: Družstevní
Umístění: Velmi dobrý
Obytná plocha: 77 m2
Lodžie: 5m2
Užitná plocha: 77 m2
Plocha sklepa: 2 m2
Zastavěná plocha: 261 m2
Energetická náročnost budovy:
G - Mimořádně nehospodárná
 
 

 

Bleskový dotaz makléři

K prodeji, Byt 3+1, 77 m2, Ostrava, Hulvácká

Text dotazu *
Váš telefon *
Váš e-mail
Zobrazit kontaktní informace
Odeslat
 
 
 
 

Ve schránce je 0 inzerátů.

zobrazit celou schránku
 
 

Nalezli jsme dalších 160 nemovitostí v podobné ceně.

 
 
reklama