K prodeji, Byt 4+1, 76 m2, Praha 11

 
 
 
exkluzivně
 
Lokalita:
Praha 11
 
 
Cena:
8 990 000 Kč / za nemovitost
 
 
uvedená cena je: bez provize Rezervováno Nabídněte prodejci Vaši cenu 
 
 

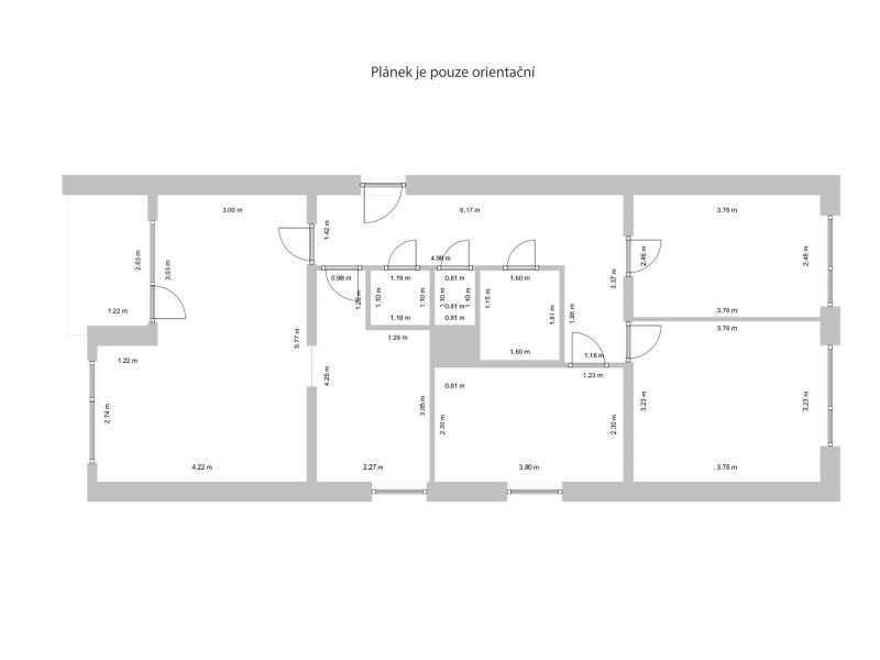
Hledáte prostorné bydlení v klidné části Prahy s možností úprav dle vlastních představ? Nabízíme ke koupi byt o dispozici 4+1, který se nachází ve vyvýšeném přízemí panelového domu v tiché Radimovické ulici na Chodově, Praha 11. Součástí bytu je také lodžie o velikosti 4,3 m² a sklep, ideální pro uskladnění sezónních věcí. Byt je v původním stavu a připraven k rekonstrukci, což budoucímu majiteli otevírá možnost vytvořit si bydlení přesně na míru. Umístění ve vyvýšeném přízemí zajišťuje nejen pohodlný přístup, ale také dostatek soukromí. Výhodou je orientace oken do tří světových stran – na sever, východ a jih – což zajišťuje výbornou světlost bytu po celý den. Pro lepší představu, jak může byt vypadat po rekonstrukci, jsou v galerii k inzerátu připraveny vizualizace navrženého interiéru. Ty mohou sloužit jako inspirace pro vlastní návrh i odhad potřebných investic. Lokalita nabízí kompletní občanskou vybavenost – v docházkové vzdálenosti se nachází školy, školky, obchody, lékárny a další služby. Kromě městské infrastruktury je v okolí také dostatek zeleně. Pouhých pár minut chůze od domu leží Miličovský les a rybník, které vybízejí k procházkám, sportovním aktivitám i odpočinku v přírodě. Výborné je rovněž dopravní spojení do centra Prahy – nedaleko se nachází stanice metra a zastávky MHD, což zajišťuje pohodlné každodenní dojíždění. Kupní cena činí 8.990.000 Kč a zahrnuje právní servis. Byt je možné financovat hypotečním úvěrem, s jehož vyřízením vám rádi pomůžeme. Pokud hledáte klidné bydlení s možností úprav podle vlastních představ v dobře dostupné části Prahy, neváhejte nás kontaktovat pro více informací nebo domluvení prohlídky.

 
zobrazit více
 
 
 


Doplňující informace:

ID inzerátu ESO: 4351015
Inzerát vydán: 08.08.2025
Inzerát aktualizován: 27.04.2026
ID zakázky v RK: 7234280
Budova je z: Panel
Stav: Před rekonstrukcí
Vlastnictví: Osobní
Umístění: Před rekonstrukcí
Zařízení bytu: Částečně zařízený
Obytná plocha: 76 m2
Plyn: Zaveden
Voda: Vodovod
Parkování: U domu (veřejné)
Lodžie: ANO
Užitná plocha: 80 m2
Podlahová plocha: 76 m2
Energetická náročnost budovy:
B - Velmi úsporná
 
 

 

Bleskový dotaz makléři

K prodeji, Byt 4+1, 76 m2, Praha 11

Text dotazu *
Váš telefon *
Váš e-mail
Zobrazit kontaktní informace
Odeslat
 
 
 
 

Ve schránce je 0 inzerátů.

zobrazit celou schránku
 
 

Nalezli jsme dalších 1379 nemovitostí v podobné ceně.

 
 
reklama