K prodeji, Byt 4+kk, 76 m2, Praha 4, Novodvorská

 
 
 
exkluzivně
 
Lokalita:
Praha 4, Novodvorská
 
 
Cena:
10 389 000 Kč / za nemovitost
 
Včetně provize RK a právních služeb
 
Nabídněte prodejci Vaši cenu 
 
 

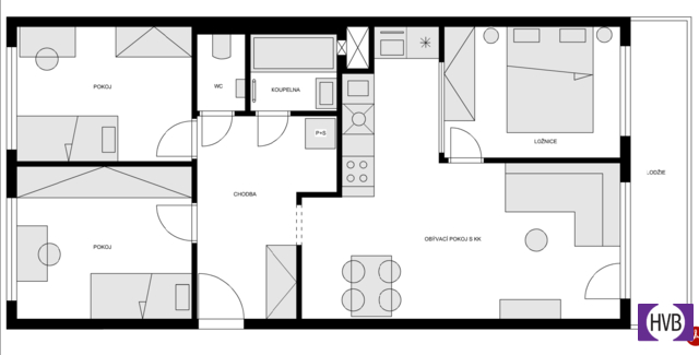
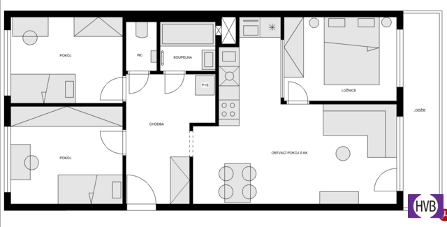
Nabízíme k prodeji světlý prostorný byt po kompletní rozsáhlé rekonstrukci včetně elektřiny o dispozici 4+kk s lodžií o celkové výměře cca 76m2, nacházející se na adrese ul. Novodvorská Praha 4 - Braník. Tato nemovitost, situovaná ve 3. patře panelové budovy, nabízí pěkný výhled na okolí. Dispozici tvoří vstupní chodba, obývací pokoj s plně vybaveným kuchyňským koutem, tři obytné místnosti, koupelna, oddělené místo pro pračku a samostatné WC. K bytu patři sklep. Bydlení je navrženo s ohledem na moderní životní styl, vybaveno kvalitními materiály a promyšlenými detaily. Součástí bytu je také prostorná lodžie cca 7m2. Budova prošla revitalizací. V blízkosti nemovitosti se nachází veškerá občanská vybavenost, včetně obchodů, restaurací a volnočasových aktivit, což činí tuto lokalitu velmi atraktivní pro všechny, kteří hledají pohodlné rodinné bydlení. Doprava do centra města je zajištěna prostřednictvím městské hromadné dopravy, v pěší vzdálenosti zastávka autobusů s přímým spojem na metro. V případě zájmu o prohlídku nás neváhejte kontaktovat i přes víkend.

 
zobrazit více
 
 
 


Doplňující informace:

ID inzerátu ESO: 4374575
Inzerát vydán: 11.12.2025
Inzerát aktualizován: 21.01.2026
ID zakázky v RK: 20251
Budova je z: Panel
Stav: Po rekonstrukci
Vlastnictví: Osobní
Umístění: Po rekonstrukci
Obytná plocha: 76 m2
Lodžie: 7m2
Užitná plocha: 76 m2
Plocha sklepa: 1 m2
Energetická náročnost budovy:
D - Méně úsporná
 
 

 

Bleskový dotaz makléři

K prodeji, Byt 4+kk, 76 m2, Praha 4, Novodvorská

Text dotazu *
Váš telefon *
Váš e-mail
Zobrazit kontaktní informace
Odeslat
 
 
 
 

Ve schránce je 0 inzerátů.

zobrazit celou schránku
 
 

Nalezli jsme dalších 81 nemovitostí v podobné ceně.

 
 
reklama