K prodeji, dům, Luleč

 
 
 
Lokalita:
Luleč
 
 
Cena:
Info o ceně u RK
 
Info o ceně v RK je k jednání, včetně poplatků provize a právního servisu.
 
uvedená cena je: včetně poplatků, včetně provize, včetně právního servisu, k jednání Nabídněte prodejci Vaši cenu 
 
 

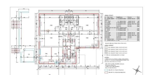
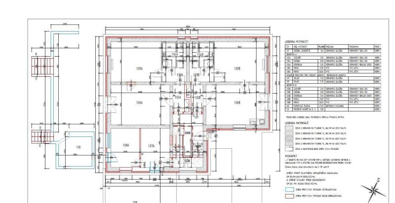
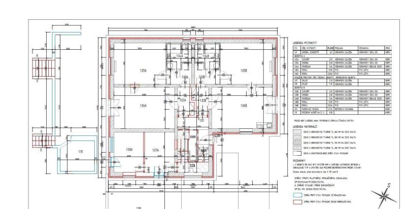
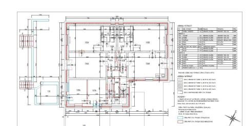
Nabízíme vám k prodeji dům se třemi samost. jednotkami 2x 2+kk a 1x 5+1, se 3-mi parkovacími místy a zahradou a vlastním lesem, CP je 1785m2, ZP je 587m2, UP-cca 267m2. Zahrada-1198m2. Tentokrát v malebné obci Luleč, okres Vyškov, od Brna necelých 30min, východním směrem do Vyškova jen 10min. s výhledem do okolí, který jsem právě pro vás objevil. Stavba je ve fázi uzavřené hrubé stavby okny dveřmi a střechou. V přízemí jsou dvě jednotky 2+kk, každý cca 60m2 s terasou 21m2. V patře je jedna 5+1 cca - 147m2, která by šla rozdělit stavebně na dva 2+kk, 70m2+74m2 (pro případ pronájmu jako investice). Je vybudováno parkoviště. Vše na vlastním pozemku. Dům je připojen na El 240/400V, voda- vlastní studna, dešťová voda je svedena do retenční nádoby, odpady -čistička odpadní vody. Nachází se na klidné části obce, lokace Liliový vrch, jedná se o samostatný, zděný dům, se dvěma NP se zahradou. Je určen k dostavbě s platným St. povolením. Byty jsou zapsány do KN a to Prohlášením vlastníka o rozdělení na 3. jednotky ze zákona, tz. že jednotky mají vlastní číslo a mohou být prodány samostatně. Náklady na dokončení domu jsou cca 5,6 mil. Kč. V místě je plná občanská vybavenost, ke koupání je tu zatopený lom. Výborná dostupnost do Brna a do Vyškova. Doporučuji i videoprohlídku. Více info u makléře.

 
zobrazit více
 
 
 


Doplňující informace:

ID inzerátu ESO: 4362835
Inzerát vydán: 04.10.2025
Inzerát aktualizován: 28.01.2026
ID zakázky v RK: 0
Budova je z: Cihla
Stav: Velmi dobrý
Umístění: Velmi dobrý
Plocha pozemku: 1785 m2
Terasa: 42m2
Užitná plocha: 267 m2
Podlahová plocha: 267 m2
Plocha zahrady: 1198 m2
Zastavěná plocha: 267 m2
Energetická náročnost budovy:
G - Mimořádně nehospodárná
 
 

 

Bleskový dotaz makléři

K prodeji, dům, Luleč

Text dotazu *
Váš telefon *
Váš e-mail
Zobrazit kontaktní informace
Odeslat
 
 
 
 

Ve schránce je 0 inzerátů.

zobrazit celou schránku
 
 

Nalezli jsme dalších 4 nemovitostí v podobné ceně.

 
 
reklama