K prodeji, Novostavba: dům, 111 m2, Plzeň 10-Lhota

 
 
 
Lokalita:
Plzeň 10-Lhota
 
 
Cena:
10 960 000 Kč / za nemovitost
 
 
uvedená cena je: bez provize Nabídněte prodejci Vaši cenu 
 
 

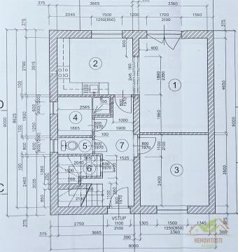
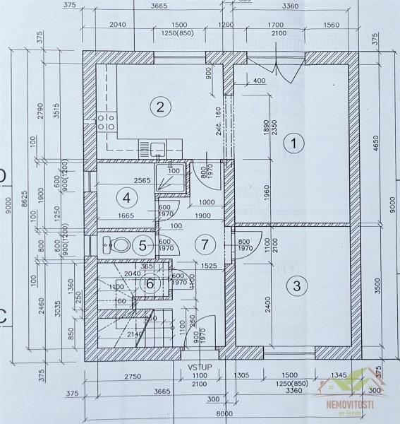
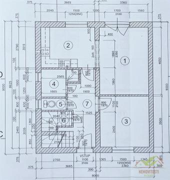
Nabízíme k prodeji novostavbu moderního rodinného domu z roku 2012, který se nachází na klidném místě v atraktivní a velmi žádané lokalitě Plzni Lhotě. Ideální volba pro rodinné bydlení v zeleni, s výbornou dostupností do centra města i dálnici D5. Rodinný dům o dispozici 5+kk je situován v pečlivě udržované, oplocené a osázené zahradě s polozapuštěným bazénem s filtrací a dětským hřištěm. Dům je částečně podsklepený. Obývací část, kuchyně i terasa jsou orientovány na jih, díky čemuž je dům po celý den krásně prosvětlený a slunný. V každém patře je koupelna a samostané WC. RD je napojen na městský vodovod, odpady jsou svedeny do jímky, s možností napojení na kanalizaci během příštího roku. Velkým benefitem je vlastní vrt o hloubce 25 m, přičemž hladina vody je již ve 3–4 metrech. Lze tedy využívat jak vodu městskou, tak vodu ze studny. Vytápění domu zajišťuje kombinovaný plynový kotel. Fasáda domu je zateplena kontaktním zateplovacím systémem, v podkroví je použito 21 cm vaty. Dům je nízkoengetický, měsíční náklady na bydlení jsou extrémně nízké. Terasa je opatřena zastřešením, které umožňuje její využívání téměř po celý rok. Plzeň – Lhota nabízí kompletní občanskou vybavenost (mateřská škola, dětské skupiny, obchody, restaurace, cukrárna/kavárna, sportoviště, obecní úřad, dětská hřiště) i velmi dobrou dopravní dostupnost MHD. Rozsáhlé lesy začínají již cca minutu chůze od domu. Lokalita kombinuje klidné bydlení na okraji města s dostupností do centra Plzně i na dálnici D5. V obci se pravidelně konají kulturní a sportovní akce, což přispívá k příjemné komunitní atmosféře. Pro více informací a sjednání nezávazné prohlídky nás neváhejte kontaktovat. Tento dům vřele doporučujeme.

 
zobrazit více
 
 
 


Doplňující informace:

ID inzerátu ESO: 4381562
Inzerát vydán: 26.01.2026
Inzerát aktualizován: 09.03.2026
ID zakázky v RK: 7334630
Budova je z: Cihla
Stav: Nerozhoduje
Vlastnictví: Osobní
Umístění: Nerozhoduje
Poloha objektu: Samostatný
Zařízení bytu: Částečně zařízený
Užitná plocha: 111 m2
Plocha pozemku: 384 m2
Plyn: Zaveden
Voda: Vodovod
Vytápění: Ústřední plynové
Parkování: Venkovní stání
Terasa: ANO
Podlahová plocha: 176 m2
Plocha sklepa: 15 m2
Plocha zahrady: 296 m2
Zastavěná plocha: 88 m2
Energetická náročnost budovy:
B - Velmi úsporná
 
 

 

Bleskový dotaz makléři

K prodeji, Novostavba: dům, 111 m2, Plzeň 10-Lhota

Text dotazu *
Váš telefon *
Váš e-mail
Zobrazit kontaktní informace
Odeslat
 
 
 
 

Ve schránce je 0 inzerátů.

zobrazit celou schránku
 
 

Nalezli jsme dalších 1209 nemovitostí v podobné ceně.

 
 
reklama