K prodeji, Novostavba: dům, 140 m2, Pardubice, Pardubice III, Erno Košťála

 
 
nový
 
Lokalita:
Pardubice, Pardubice III, Erno Košťála
 
 
Cena:
15 200 000 Kč / za nemovitost
 
 
uvedená cena je: bez provize Nabídněte prodejci Vaši cenu 
 
 

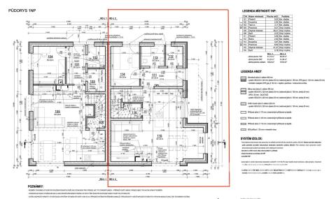
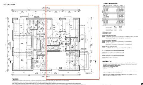
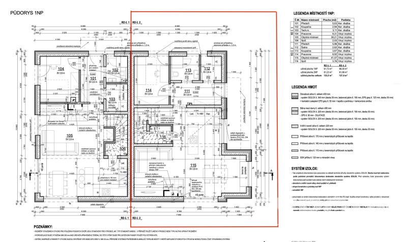
Jste rodina a hledáte novostavbu rodinného domu? Rodinný dům přímo ve městě? Pokud ano, tak tato nabídka prodeje rodinného domu 5+kk o velikosti 140 m2 s celkovým pozemkem 309 m2 v ulici Erno Košťála v Pardubicích na Dubině je právě pro vás. Jedná se o energeticky úsporný rodinný dům kolaudovaný v roce 2023. Byly použity kvalitní materiály se skvělými tepelnými a protihlukovými vlastnostmi. Základní technické informace: Zdivo – systém Izolox – skvělé tepelně izolační vlastnosti a zvuková izolace Navíc další vnější zateplení 10 cm polystyrén Okna Internorm s trojskly – vysoce kvalitní a designová okna Předokenní žaluzie HS portálové okno Tepelné čerpadlo – vytápění a ohřev vody Podlahové vytápění PENB – A mimořádně úsporná Měsíční náklady elektřiny na dům 3.300, Dispozice domu 5+kk je velmi prakticky řešená. Je využit každá m2 plochy domu. V domě najdete jak praktickou vstupní šatnu, komoru pod schody, tak i technickou místnost s pračkou a sušičkou. Dominantou rodinného domu je obývací pokoj s kuchyní. Vstup na terasu umožňuje HS portálové okno. Dalším prostorem k využití je i mezonetové patro nad ložnicí. Momentálně využívané jako dětská hernička. Nicméně prostor může sloužit i jako odpočinkový prostor pro čtení, relaxaci či meditaci. Necháme už na vaší fantazii. Celý dům je vybavený novým a moderním nábytkem, který utváří příjemné bydlení. Na dům navazuje malá terasa s posezením, grilem a také bazénem. Před domem jsou dvě soukromé parkovací stání. Dispozice: Přízemí: vstupní chodba, šatna, koupelna se sprchou a WC, pracovna, obývací pokoj s kuchyní, komora pod schody 1.Patro: chodba, 2 dětské pokoje, koupelna s vanou, samostatné WC, technická místnost, velká ložnice s mezonetovým patrem (otevřené podkroví) Podkroví: dětská herna Lokalita Dubina nabízí příjemné a hezké bydlení a splňuje požadavky i těch nejnáročnějších majitelů. Výhodou je i blízkost Základních a Mateřských škol, sportovišť a dále lesy a příroda s mnoha možnostmi využití jak pro odpočinek, tak i aktivní sportovní vyžití. Občanská vybavenost je samozřejmostí. Budeme se těšit na Váš zájem a věříme, že si dům najde brzy nové a slušné majitele. Tento dům Vám velice doporučuji a rád Vás přivítám na prohlídce. Budu se těšit na zavolání. S pozdravem Milan Polívka Certifikovaný makléř číslo OsR 19./I./2018

 
zobrazit více
 
 
 


Doplňující informace:

ID inzerátu ESO: 4392454
Inzerát vydán: 24.03.2026
ID zakázky v RK: 7376600
Budova je z: Cihla
Stav: Nerozhoduje
Vlastnictví: Osobní
Umístění: Nerozhoduje
Poloha objektu: Řadový
Užitná plocha: 140 m2
Plocha pozemku: 309 m2
Voda: Vodovod
Vytápění: Jiné
Parkování: Venkovní stání
Podlahová plocha: 140 m2
Zastavěná plocha: 85 m2
Energetická náročnost budovy:
A - Mimořádně úsporná
 
 

 

Bleskový dotaz makléři

K prodeji, Novostavba: dům, 140 m2, Pardubice, Pardubice III, Erno Košťála

Text dotazu *
Váš telefon *
Váš e-mail
Zobrazit kontaktní informace
Odeslat
 
 
 
 

Ve schránce je 0 inzerátů.

zobrazit celou schránku
 
 

Nalezli jsme dalších 17 nemovitostí v podobné ceně.

 
 
reklama